Продается 4-комн. квартира, 102.65 м²
Россия, Санкт-Петербург, территория Коломна
Горный институт
13 мин.
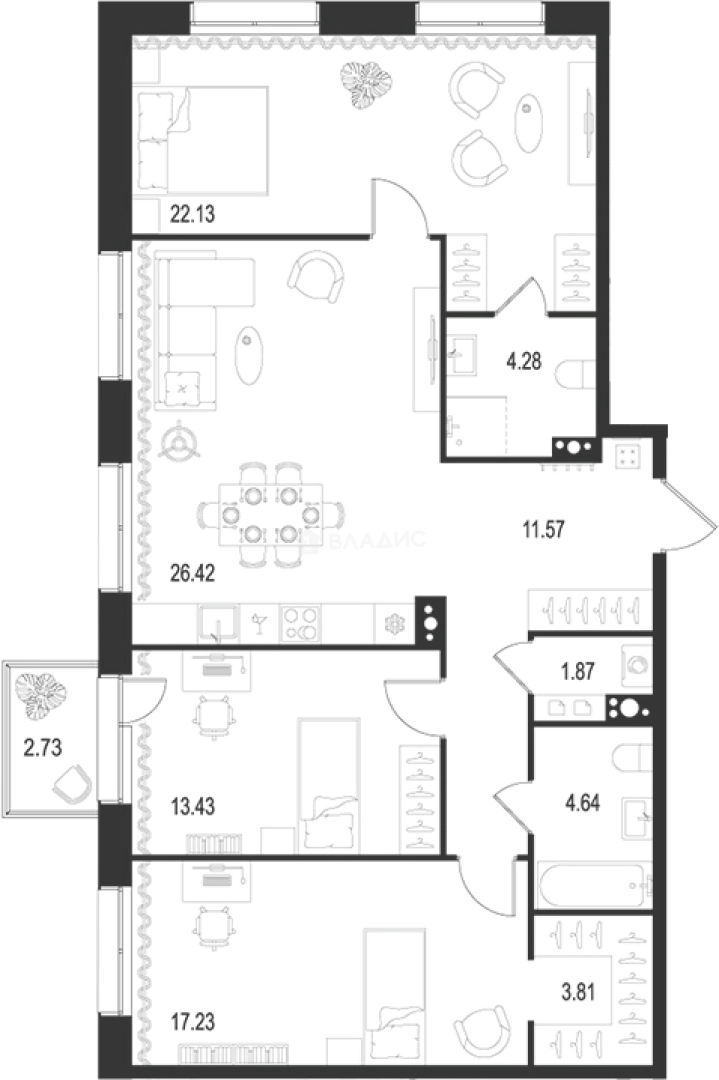
102.65 м²
Общая площадь
52.79 м²
Жилая площадь
26.42 м²
Площадь кухни
3 из 10
Этаж
Описание
В проекте представлены студии и квартиры с 1, 2 и 3 спальнями, также есть варианты с европланировками. В помещениях предусмотрены потолки от 2,7 до 3,6 метров и увеличенные окна, откуда открываются живописные виды на набережную Невы.
Среди преимуществ комплекса можно выделить уникальную историческую локацию в сердце города, а так же виды на реку. На 1 этаже расположены коммерческие помещения, а для удобства жильцов оборудованы подземный и гостевой паркинги.
Квартал расположен в Адмиралтейском районе, на Матисовом острове, в окружении исторических достопримечательностей. В радиусе 10 минут пешком доступны школы, детские сады, медицинские учреждения, супермаркеты, кафе, рестораны и парки. В пределах 15–20 минут пешком находятся Мариинский театр и остров Новая Голландия. Ближайшие метро Балтийская и Нарвская находятся в 15 минутах транспортом.
О квартире
Общая площадь
102.65 м²
Жилая площадь
52.79 м²
Площадь кухни
26.42 м²
Площадь комнат
22.13+13.43+17.23 м²
Высота потолков
3 м
Этаж
3
Окна выходят
На улицу
О доме
Год постройки
2029
Этажность
10
Материал постройки
Кирпично-монолитный
Парковка
Подземная
Расположение
Россия, Санкт-Петербург, территория Коломна
Горный институт
13 мин.
Василеостровская
26 мин.
Балтийская
29 мин.
Нарвская
3 мин.
Садовая
3 мин.
Сенная площадь
4 мин.
Спасская
4 мин.
Ипотечный калькулятор
Заполните 1 анкету — получите предложения от десятков банков на специальных условиях
Программа ипотеки
Стоимость жилья, ₽
Первый взнос, ₽
Срок кредита
от 5.75%
Ставка
от 561 587 ₽
Платеж в месяц
Расчёт носит информационный характер и не является публичной офертой
Похожие объекты






3-комн. квартира, 105,5 м², 5/9 эт.
Горный институт
16 мин.






3-комн. квартира, 101,4 м², 7/9 эт.
Горный институт
16 мин.






3-комн. квартира, 97 м², 4/9 эт.
Горный институт
16 мин.









4-комн. квартира, 98,4 м², 6/10 эт.
Горный институт
13 мин.
Консультант по новостройкам
89 267 398 ₽
869 629 ₽/м²










