Продается 4-комн. квартира, 81.62 м²
Россия, Санкт-Петербург, территория Коломна
Горный институт
14 мин.
81.62 м²
Общая площадь
41.85 м²
Жилая площадь
19.6 м²
Площадь кухни
3 из 10
Этаж
Описание
В проекте представлены студии и квартиры с 1, 2 и 3 спальнями, также есть варианты с европланировками. В помещениях предусмотрены потолки от 2,7 до 3,6 метров и увеличенные окна, откуда открываются живописные виды на набережную Невы.
Среди преимуществ комплекса можно выделить уникальную историческую локацию в сердце города, а так же виды на реку. На 1 этаже расположены коммерческие помещения, а для удобства жильцов оборудованы подземный и гостевой паркинги.
Квартал расположен в Адмиралтейском районе, на Матисовом острове, в окружении исторических достопримечательностей. В радиусе 10 минут пешком доступны школы, детские сады, медицинские учреждения, супермаркеты, кафе, рестораны и парки. В пределах 15–20 минут пешком находятся Мариинский театр и остров Новая Голландия. Ближайшие метро Балтийская и Нарвская находятся в 15 минутах транспортом.
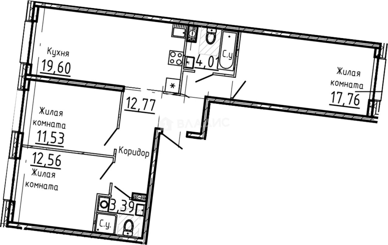
О квартире
Общая площадь
81.62 м²
Жилая площадь
41.85 м²
Площадь кухни
19.6 м²
Площадь комнат
17.76+11.53+12.56 м²
Высота потолков
2.85 м
Этаж
3
Окна выходят
На улицу
О доме
Год постройки
2029
Этажность
10
Материал постройки
Кирпично-монолитный
Парковка
Подземная
Расположение
Россия, Санкт-Петербург, территория Коломна
Горный институт
14 мин.
Василеостровская
25 мин.
Балтийская
28 мин.
Садовая
28 мин.
Сенная площадь
30 мин.
Спасская
30 мин.
Адмиралтейская
3 мин.
Ипотечный калькулятор
Заполните 1 анкету — получите предложения от десятков банков на специальных условиях
Программа ипотеки
Стоимость жилья, ₽
Первый взнос, ₽
Срок кредита
от 5.75%
Ставка
от 232 246 ₽
Платеж в месяц
Расчёт носит информационный характер и не является публичной офертой
Похожие объекты








3-комн. квартира, 77,1 м², 2/6 эт.
Василеостровская
6 мин.








3-комн. квартира, 74,2 м², 5/6 эт.
Василеостровская
6 мин.








3-комн. квартира, 89,1 м², 5/6 эт.
Василеостровская
6 мин.








3-комн. квартира, 76,5 м², 3/6 эт.
Василеостровская
6 мин.
Консультант по новостройкам
36 916 726 ₽
452 300 ₽/м²













