Продается 3-комн. квартира, 62.1 м²
Россия, Санкт-Петербург, территория Гавань, жилой комплекс Парусная 1
Приморская
16 мин.
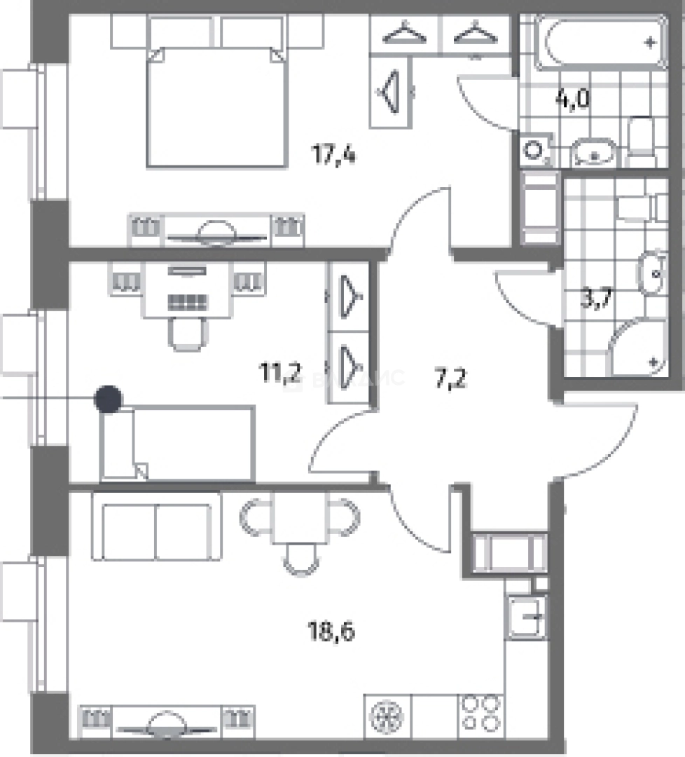
62.1 м²
Общая площадь
28.6 м²
Жилая площадь
18.6 м²
Площадь кухни
4 из 13
Этаж
Описание
О квартире
Общая площадь
62.1 м²
Жилая площадь
28.6 м²
Площадь кухни
18.6 м²
Площадь комнат
11.2+17.4 м²
Высота потолков
2.9 м
Этаж
4
Окна выходят
На улицу
О доме
Год постройки
2026
Этажность
13
Материал постройки
Кирпично-монолитный
Материал перекрытий
Монолитные
Отопление
Центральное
Парковка
Подземная
Расположение
Россия, Санкт-Петербург, территория Гавань, жилой комплекс Парусная 1
Приморская
16 мин.
Василеостровская
4 мин.
Спортивная
6 мин.
Зенит
6 мин.
Крестовский остров
6 мин.
Чкаловская
7 мин.
Нарвская
7 мин.
Адмиралтейская
7 мин.
Ипотечный калькулятор
Заполните 1 анкету — получите предложения от десятков банков на специальных условиях
Программа ипотеки
Стоимость жилья, ₽
Первый взнос, ₽
Срок кредита
от 5.75%
Ставка
от 137 699 ₽
Платеж в месяц
Расчёт носит информационный характер и не является публичной офертой
Похожие объекты




2-комн. квартира, 58,6 м², 6/14 эт.
Приморская
29 мин.








2-комн. квартира, 59,7 м², 2/6 эт.
Василеостровская
6 мин.








Студия, 63,1 м², 2/6 эт.
Василеостровская
6 мин.








Студия, 63,1 м², 4/6 эт.
Василеостровская
6 мин.
Консультант по новостройкам
21 888 000 ₽
352 464 ₽/м²









