Продается 2-комн. квартира, 45.3 м²
Россия, Санкт-Петербург, территория Гавань, жилой комплекс Парусная 1
Приморская
16 мин.
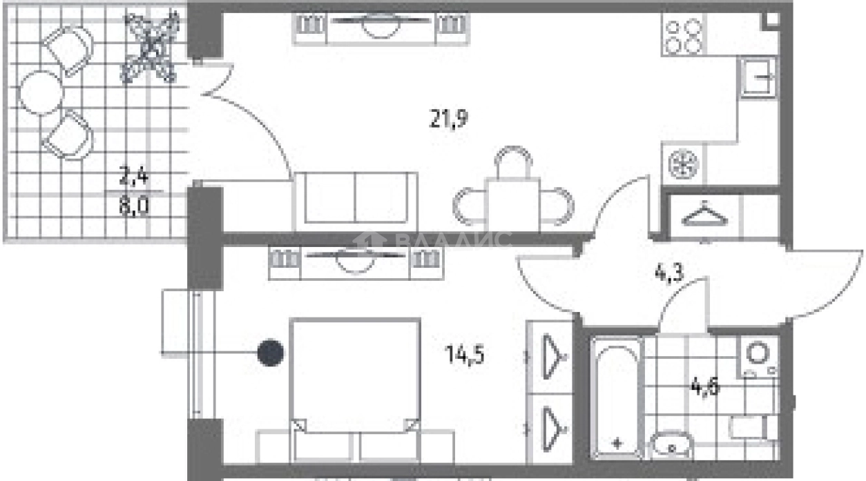
45.3 м²
Общая площадь
14.5 м²
Жилая площадь
21.9 м²
Площадь кухни
1 из 13
Этаж
Описание
О квартире
Общая площадь
45.3 м²
Жилая площадь
14.5 м²
Площадь кухни
21.9 м²
Площадь комнат
14.5 м²
Высота потолков
2.9 м
Этаж
1
Окна выходят
На улицу
О доме
Год постройки
2026
Этажность
13
Материал постройки
Кирпичный
Материал перекрытий
Монолитные
Отопление
Центральное
Парковка
Подземная
Расположение
Россия, Санкт-Петербург, территория Гавань, жилой комплекс Парусная 1
Приморская
16 мин.
Василеостровская
4 мин.
Спортивная
6 мин.
Зенит
6 мин.
Крестовский остров
6 мин.
Чкаловская
6 мин.
Нарвская
7 мин.
Адмиралтейская
7 мин.
Ипотечный калькулятор
Заполните 1 анкету — получите предложения от десятков банков на специальных условиях
Программа ипотеки
Стоимость жилья, ₽
Первый взнос, ₽
Срок кредита
от 5.75%
Ставка
от 120 399 ₽
Платеж в месяц
Расчёт носит информационный характер и не является публичной офертой
Похожие объекты








2-комн. квартира, 41,7 м², 4/6 эт.
Василеостровская
6 мин.








2-комн. квартира, 41,7 м², 6/6 эт.
Василеостровская
6 мин.








2-комн. квартира, 44,5 м², 2/6 эт.
Василеостровская
6 мин.









2-комн. квартира, 49,2 м², 2/6 эт.
Василеостровская
6 мин.
Консультант по новостройкам
19 138 000 ₽
422 473 ₽/м²
















