Продается 2-комн. квартира, 49.08 м²
Россия, Санкт-Петербург, Пушкинский район, посёлок Шушары, Московское шоссе, 262к1
Шушары
11 мин.
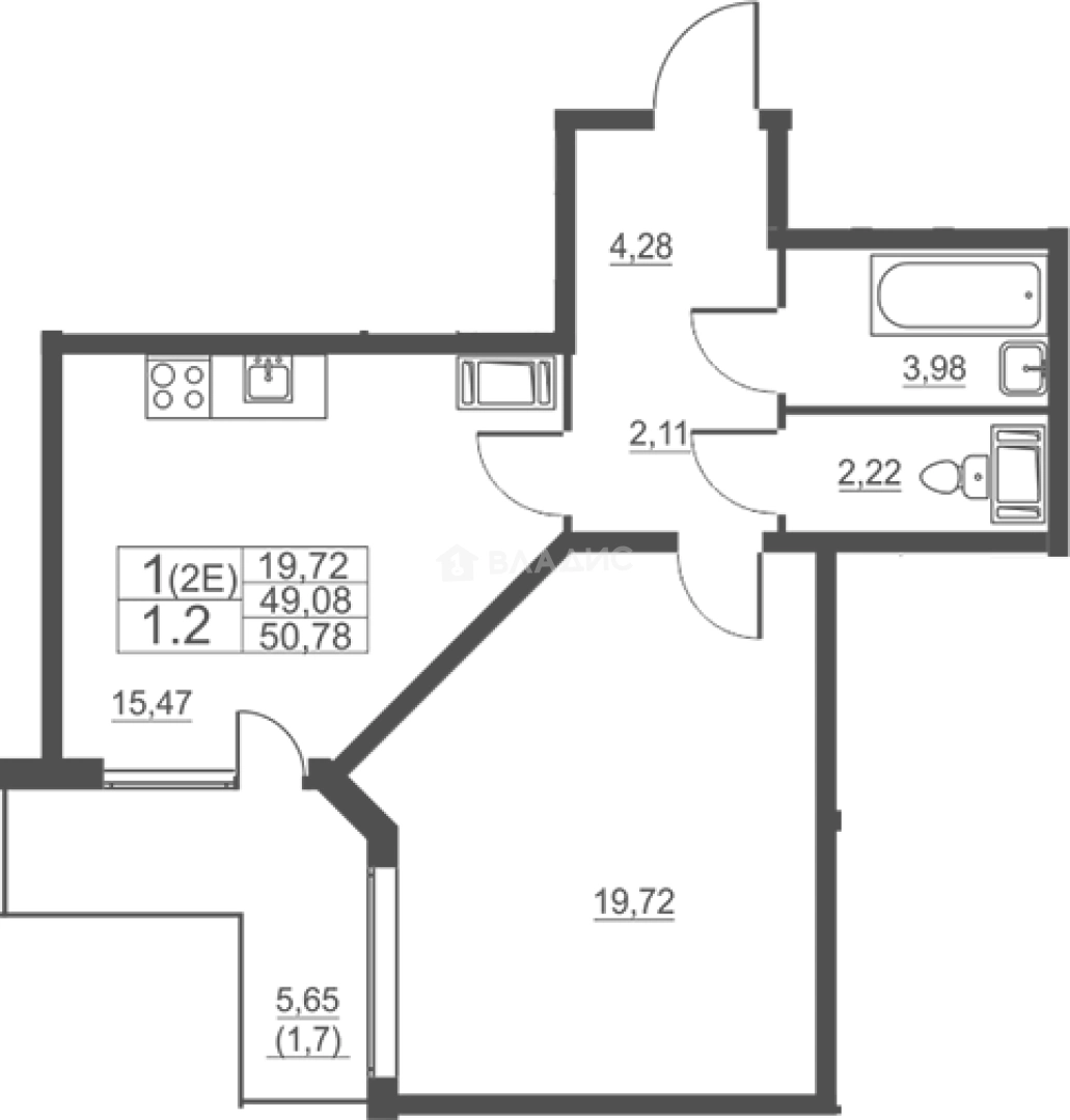
49.08 м²
Общая площадь
19.72 м²
Жилая площадь
15.47 м²
Площадь кухни
5 из 11
Этаж
Описание
Во внутреннем дворе благоустроенные площадки для детей.
Малоэтажная застройка делает комплекс комфортным и уютным!) Комплекс расположен вблизи исторических достопримечательностей!
До ближайшей станции метро "Купчино" 20 минут!
О квартире
Общая площадь
49.08 м²
Жилая площадь
19.72 м²
Площадь кухни
15.47 м²
Площадь комнат
19.72 м²
Высота потолков
2.6 м
Этаж
5
Окна выходят
На улицу
О доме
Год постройки
2024
Этажность
11
Материал постройки
Монолитный
Материал перекрытий
Монолитные
Отопление
Центральное
Парковка
Многоуровневая
Расположение
Россия, Санкт-Петербург, Пушкинский район, посёлок Шушары, Московское шоссе, 262к1
Шушары
11 мин.
Рыбацкое
13 мин.
Купчино
15 мин.
Дунайская
15 мин.
Обухово
16 мин.
Звёздная
17 мин.
Проспект Славы
19 мин.
Пролетарская
19 мин.
Ипотечный калькулятор
Заполните 1 анкету — получите предложения от десятков банков на специальных условиях
Программа ипотеки
Стоимость жилья, ₽
Первый взнос, ₽
Срок кредита
от 5.75%
Ставка
от 39 258 ₽
Платеж в месяц
Расчёт носит информационный характер и не является публичной офертой
Похожие объекты







2-комн. квартира, 49,1 м², 7/11 эт.
Шушары
11 мин.







2-комн. квартира, 47,8 м², 9/11 эт.
Шушары
11 мин.







2-комн. квартира, 49,1 м², 10/11 эт.
Шушары
11 мин.
Консультант по новостройкам
6 240 160 ₽
127 143 ₽/м²








