Продается 3-комн. квартира, 61.28 м²
Россия, Санкт-Петербург, Приморский район, муниципальный округ Чёрная Речка
Чёрная речка
5 мин.
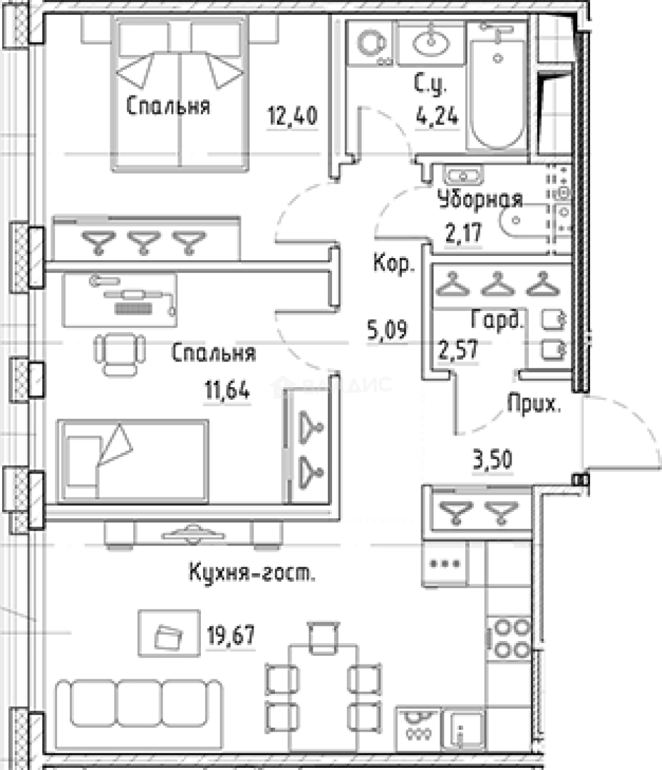
61.28 м²
Общая площадь
24.04 м²
Жилая площадь
19.67 м²
Площадь кухни
8 из 10
Этаж
Описание
В проекте «Лисичанская, 22» представлена 171 квартира. Выверенная селекция планировочных решений представляет собой линейку студий, квартир с 1, 2 спальнями размерного ряда XS, S, M и L. Всего 16 типов, можно подобрать квартиру с эркером или балконом.
В жилом комплексе «Лисичанская, 22» предусмотрен закрытый двор по периметру. На первых этажах комплекса находятся коммерческие помещения. В проект входит свой детский сад на 110 мест. Для владельцев автомобилей реализован теплый подземный паркинг на 93 места. Пространство располагается на подземном этаже и по объему занимает всю территорию земельного участка. Спуститься в паркинг можно на лифте прямо со своего этажа.
Жилой комплекс «Лисичанская, 22» находится в Приморском районе. Внешняя инфраструктура развита, в пешей доступности магазины, кафе, школы, детские сады, прогулочные аллеи, фитнес центры, медицинские учреждения. До метро «Черная речка» — 10 минут пешком.
О квартире
Общая площадь
61.28 м²
Жилая площадь
24.04 м²
Площадь кухни
19.67 м²
Площадь комнат
12.4+11.64 м²
Высота потолков
2.7 м
Подъезд
1
Этаж
8
Окна выходят
На улицу
О доме
Год постройки
2025
Этажность
10
Материал постройки
Монолитный
Материал перекрытий
Монолитные
Отопление
Центральное
Пассажирских лифтов
1
Грузовых лифтов
1
Парковка
Подземная
Расположение
Россия, Санкт-Петербург, Приморский район, муниципальный округ Чёрная Речка
Чёрная речка
5 мин.
Пионерская
23 мин.
Лесная
25 мин.
Петроградская
28 мин.
Выборгская
4 мин.
Чкаловская
4 мин.
Старая Деревня
4 мин.
Крестовский остров
5 мин.
Ипотечный калькулятор
Заполните 1 анкету — получите предложения от десятков банков на специальных условиях
Программа ипотеки
Стоимость жилья, ₽
Первый взнос, ₽
Срок кредита
от 5.75%
Ставка
от 157 169 ₽
Платеж в месяц
Расчёт носит информационный характер и не является публичной офертой
Похожие объекты









2-комн. квартира, 62,9 м², 1/6 эт.
Политехническая
14 мин.









Студия, 53,6 м², 7/6 эт.
Политехническая
14 мин.






3-комн. квартира, 66,4 м², 6/6 эт.
Пионерская
20 мин.




3-комн. квартира, 68,4 м², 23/23 эт.
Пионерская
6 мин.
Консультант по новостройкам
24 982 840 ₽
407 684 ₽/м²










