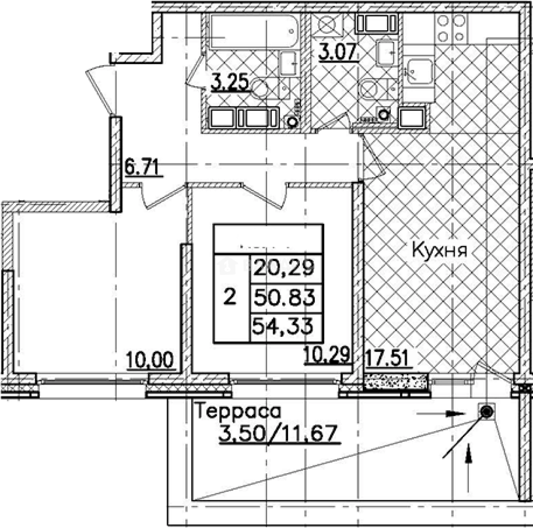
Продается 3-комн. квартира, 50.83 м²
Россия, Санкт-Петербург, проспект Маршала Блюхера, 3к3
Лесная
16 мин.
50.83 м²
Общая площадь
20.29 м²
Жилая площадь
17.51 м²
Площадь кухни
16 из 22
Этаж
Описание
О квартире
Общая площадь
50.83 м²
Жилая площадь
20.29 м²
Площадь кухни
17.51 м²
Площадь комнат
10+10.29 м²
Высота потолков
3.05 м
Подъезд
1
Этаж
16
Окна выходят
На улицу
О доме
Год постройки
2024
Этажность
22
Количество подъездов
2
Материал постройки
Монолитный
Материал перекрытий
Монолитные
Отопление
Центральное
Пассажирских лифтов
1
Грузовых лифтов
1
Парковка
Подземная
Расположение
Россия, Санкт-Петербург, проспект Маршала Блюхера, 3к3
Лесная
16 мин.
Выборгская
21 мин.
Площадь Мужества
23 мин.
Политехническая
4 мин.
Площадь Ленина
4 мин.
Петроградская
5 мин.
Академическая
5 мин.
Чёрная речка
5 мин.
Ипотечный калькулятор
Заполните 1 анкету — получите предложения от десятков банков на специальных условиях
Программа ипотеки
Стоимость жилья, ₽
Первый взнос, ₽
Срок кредита
от 5.75%
Ставка
от 118 203 ₽
Платеж в месяц
Расчёт носит информационный характер и не является публичной офертой
Похожие объекты





2-комн. квартира, 52,8 м², 3/17 эт.
Выборгская
29 мин.






3-комн. квартира, 58,1 м², 6/6 эт.
Пионерская
20 мин.







3-комн. квартира, 58,2 м², 15/18 эт.
Выборгская
28 мин.





3-комн. квартира, 58,1 м², 16/17 эт.
Выборгская
29 мин.
Консультант по новостройкам
18 789 015 ₽
369 645 ₽/м²








