Продается 2-комн. квартира, 33 м²
Россия, Санкт-Петербург, Товарищеский проспект, 38Б
Улица Дыбенко
11 мин.
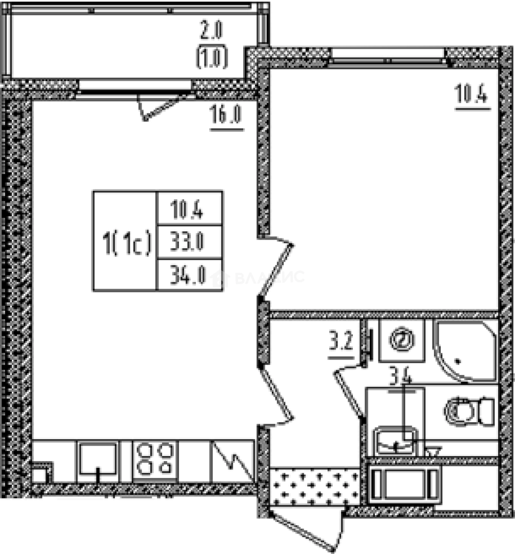
33 м²
Общая площадь
10.4 м²
Жилая площадь
16 м²
Площадь кухни
8 из 22
Этаж
Описание
В проекте предложено множество планировочных решений: от студий до 4-х комнатных квартир в формате европланировок. Сдаются они с чистовой отделкой в двух цветовых решениях, стандартными окнами и высотой потолков 2,7 метра.
Двор проекта закрытый, центральное место благоустроенной территории занимает детская зона, которая отделена от зоны отдыха и спортивной площадки зелеными насаждениями. На 1 этаже расположен детский сад на 65 мест и просторный кабинет врача общей практики. Для владельцев автомобилей предусмотрен 9-этажный паркинг и стоянка.
Жилой комплекс расположен в Невском районе. Поблизости функционирует множество школ и детских садов, медицинских центров и магазинов. Вокруг проекта расположено много парковых зон, где можно отдохнуть от рабочей суеты и весело провести время с самыми близкими. До метро «Улица Дыбенко» можно добраться за 20 минут пешком, а до «Ломоносовская» за 10 минут на транспорте.
О квартире
Общая площадь
33 м²
Жилая площадь
10.4 м²
Площадь кухни
16 м²
Площадь комнат
10.4 м²
Высота потолков
2.7 м
Этаж
8
Окна выходят
На улицу
О доме
Год постройки
2028
Этажность
22
Материал постройки
Панельный
Парковка
Многоуровневая
Расположение
Россия, Санкт-Петербург, Товарищеский проспект, 38Б
Улица Дыбенко
11 мин.
Проспект Большевиков
3 мин.
Елизаровская
6 мин.
Ломоносовская
6 мин.
Пролетарская
7 мин.
Ладожская
7 мин.
Новочеркасская
8 мин.
Обухово
10 мин.
Ипотечный калькулятор
Заполните 1 анкету — получите предложения от десятков банков на специальных условиях
Программа ипотеки
Стоимость жилья, ₽
Первый взнос, ₽
Срок кредита
от 5.75%
Ставка
от 64 552 ₽
Платеж в месяц
Расчёт носит информационный характер и не является публичной офертой
Похожие объекты







2-комн. квартира, 35,3 м², 5/18 эт.
Улица Дыбенко
22 мин.




2-комн. квартира, 35,3 м², 5/18 эт.
Улица Дыбенко
22 мин.






2-комн. квартира, 35,3 м², 13/18 эт.
Улица Дыбенко
22 мин.






2-комн. квартира, 35,3 м², 4/18 эт.
Улица Дыбенко
22 мин.
Консультант по новостройкам
10 260 860 ₽
310 936 ₽/м²

















