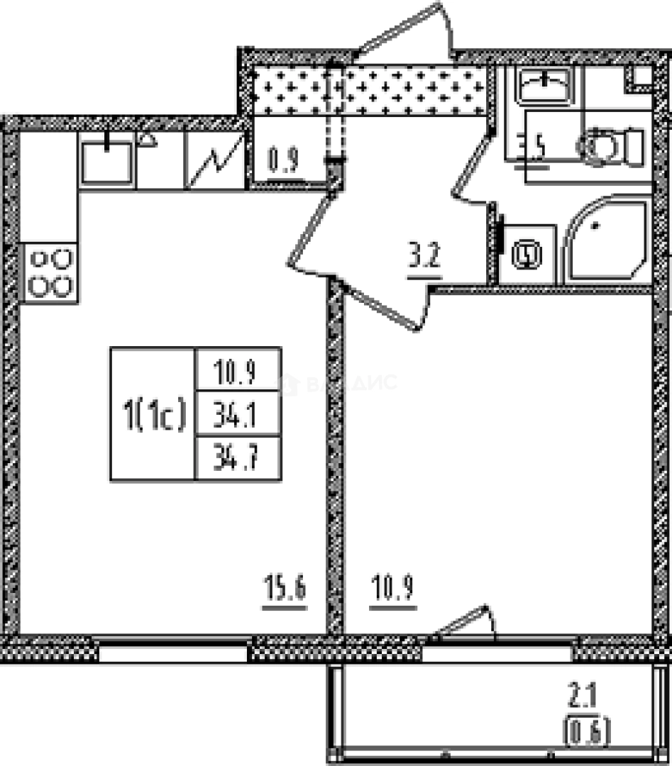
Продается 2-комн. квартира, 34.1 м²
Россия, Санкт-Петербург, Товарищеский проспект, 38Б
Улица Дыбенко
11 мин.
34.1 м²
Общая площадь
10.9 м²
Жилая площадь
15.6 м²
Площадь кухни
8 из 22
Этаж
Описание
В проекте предложено множество планировочных решений: от студий до 4-х комнатных квартир в формате европланировок. Сдаются они с чистовой отделкой в двух цветовых решениях, стандартными окнами и высотой потолков 2,7 метра.
Двор проекта закрытый, центральное место благоустроенной территории занимает детская зона, которая отделена от зоны отдыха и спортивной площадки зелеными насаждениями. На 1 этаже расположен детский сад на 65 мест и просторный кабинет врача общей практики. Для владельцев автомобилей предусмотрен 9-этажный паркинг и стоянка.
Жилой комплекс расположен в Невском районе. Поблизости функционирует множество школ и детских садов, медицинских центров и магазинов. Вокруг проекта расположено много парковых зон, где можно отдохнуть от рабочей суеты и весело провести время с самыми близкими. До метро «Улица Дыбенко» можно добраться за 20 минут пешком, а до «Ломоносовская» за 10 минут на транспорте.
О квартире
Общая площадь
34.1 м²
Жилая площадь
10.9 м²
Площадь кухни
15.6 м²
Площадь комнат
10.9 м²
Высота потолков
2.7 м
Этаж
8
Окна выходят
На улицу
О доме
Год постройки
2028
Этажность
22
Материал постройки
Панельный
Парковка
Многоуровневая
Расположение
Россия, Санкт-Петербург, Товарищеский проспект, 38Б
Улица Дыбенко
11 мин.
Проспект Большевиков
3 мин.
Елизаровская
6 мин.
Ломоносовская
6 мин.
Пролетарская
7 мин.
Ладожская
7 мин.
Новочеркасская
8 мин.
Обухово
10 мин.
Ипотечный калькулятор
Заполните 1 анкету — получите предложения от десятков банков на специальных условиях
Программа ипотеки
Стоимость жилья, ₽
Первый взнос, ₽
Срок кредита
от 5.75%
Ставка
от 65 072 ₽
Платеж в месяц
Расчёт носит информационный характер и не является публичной офертой
Похожие объекты






1-комн. квартира, 31,6 м², 10/22 эт.
Улица Дыбенко
9 мин.






1-комн. квартира, 31,6 м², 5/22 эт.
Улица Дыбенко
9 мин.






1-комн. квартира, 31,6 м², 12/22 эт.
Улица Дыбенко
9 мин.





1-комн. квартира, 31,6 м², 13/22 эт.
Улица Дыбенко
9 мин.
Консультант по новостройкам
10 343 445 ₽
303 327 ₽/м²








