Продается Студия, 23.5 м²
Россия, Санкт-Петербург, Пушкинский район, посёлок Шушары, ЖК Пулково Lake
Купчино
12 мин.
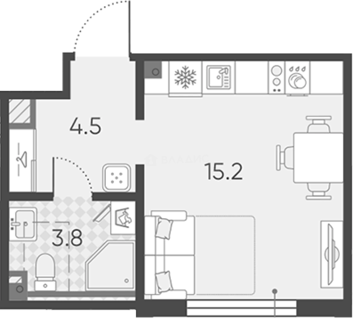
23.5 м²
Общая площадь
15.2 м²
Жилая площадь
3 из 4
Этаж
Описание
В проекте предложено множество планировочных решений: в наличии квартиры, как классического типа, так и европланировки. Также имеются квартиры с патио на 1 этаже, с мастер-спальнями, с саунами, каминами, двухуровневые и двухэтажные квартиры. Сдаются они с отделкой White Box и чистовой отделкой в 2 цветовых решениях и высотой потолков от 2.7 до 4.5 метров.
На территории комплекса на берегу Пулковского водохранилища расположен парк. В нем спроектированы места для занятий спортом, отдыха и прогулок, беговые и велосипедные дорожки, площадка для выгула собак. В проекте предусмотрены школа и 2 детских сада.
Жилой комплекс расположен в Пушкинском районе на пересечении Пулковского и Петербургского шоссе. Рядом расположены выезды на КАД и ЗСД, метро «Московская» и Аэропорт расположены в 20 минутах на автомобиле.
О квартире
Общая площадь
23.5 м²
Жилая площадь
15.2 м²
Площадь комнат
15.2 м²
Высота потолков
2.7 м
Этаж
3
Окна выходят
На улицу
О доме
Год постройки
2026
Этажность
4
Материал постройки
Панельный
Отопление
Центральное
Парковка
Многоуровневая
Расположение
Россия, Санкт-Петербург, Пушкинский район, посёлок Шушары, ЖК Пулково Lake
Купчино
12 мин.
Звёздная
13 мин.
Шушары
13 мин.
Московская
15 мин.
Дунайская
15 мин.
Проспект Ветеранов
16 мин.
Ленинский проспект
17 мин.
Проспект Славы
17 мин.
Ипотечный калькулятор
Заполните 1 анкету — получите предложения от десятков банков на специальных условиях
Программа ипотеки
Стоимость жилья, ₽
Первый взнос, ₽
Срок кредита
от 5.75%
Ставка
от 37 506 ₽
Платеж в месяц
Расчёт носит информационный характер и не является публичной офертой
Похожие объекты



Студия, 21,8 м², 3/4 эт.
Купчино
13 мин.



Студия, 22,1 м², 2/4 эт.
Купчино
13 мин.






Студия, 21,8 м², 4/4 эт.
Купчино
13 мин.






Студия, 21,8 м², 4/4 эт.
Купчино
13 мин.
Консультант по новостройкам
5 961 691 ₽
253 689 ₽/м²








