Продается 2-комн. квартира, 35.5 м²
Россия, Санкт-Петербург, Пушкинский район, посёлок Шушары, ЖК Пулково Lake
Купчино
12 мин.
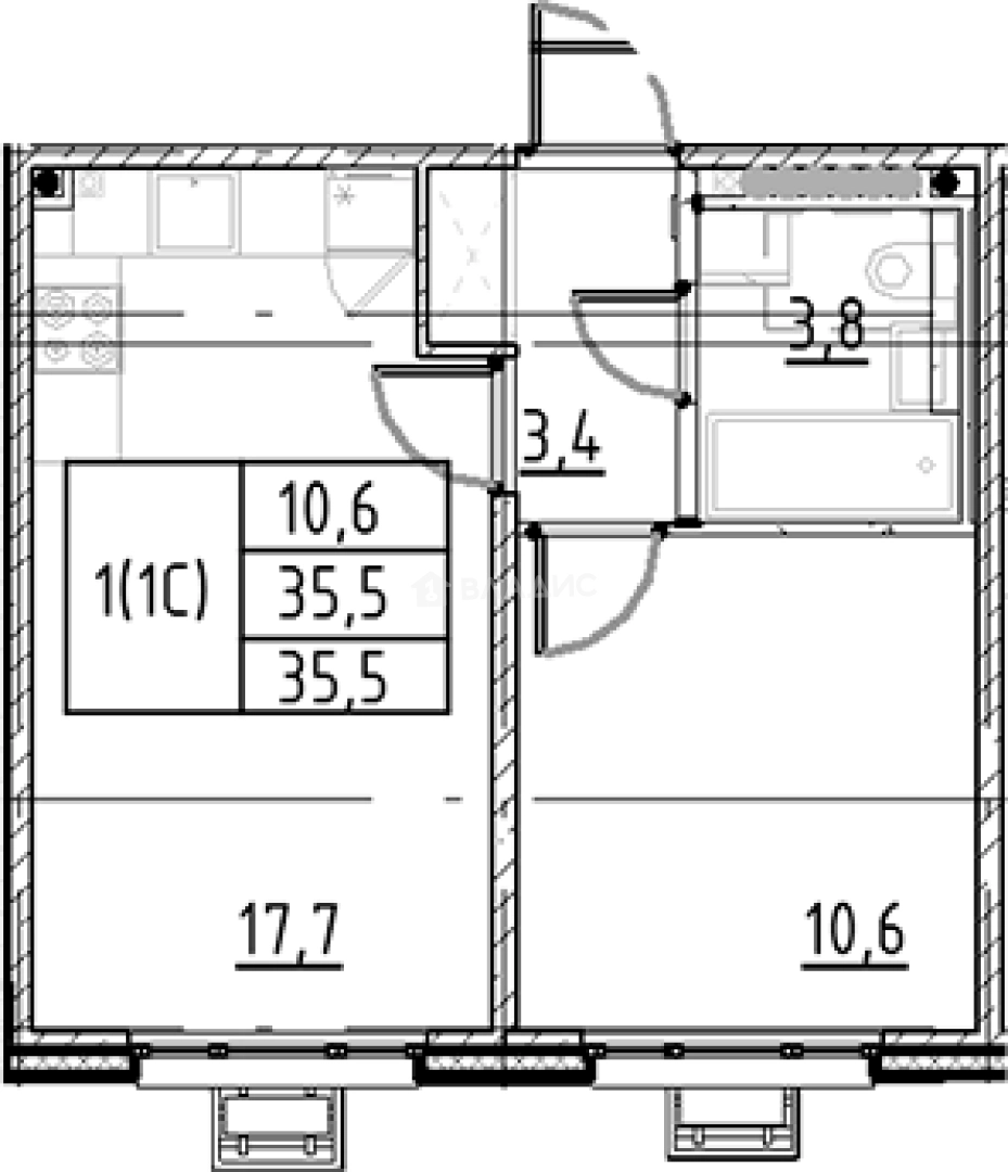
35.5 м²
Общая площадь
10.6 м²
Жилая площадь
17.7 м²
Площадь кухни
4 из 4
Этаж
Описание
В проекте предложено множество планировочных решений: в наличии квартиры, как классического типа, так и европланировки. Также имеются квартиры с патио на 1 этаже, с мастер-спальнями, с саунами, каминами, двухуровневые и двухэтажные квартиры. Сдаются они с отделкой White Box и чистовой отделкой в 2 цветовых решениях и высотой потолков от 2.7 до 4.5 метров.
На территории комплекса на берегу Пулковского водохранилища расположен парк. В нем спроектированы места для занятий спортом, отдыха и прогулок, беговые и велосипедные дорожки, площадка для выгула собак. В проекте предусмотрены школа и 2 детских сада.
Жилой комплекс расположен в Пушкинском районе на пересечении Пулковского и Петербургского шоссе. Рядом расположены выезды на КАД и ЗСД, метро «Московская» и Аэропорт расположены в 20 минутах на автомобиле.
О квартире
Общая площадь
35.5 м²
Жилая площадь
10.6 м²
Площадь кухни
17.7 м²
Площадь комнат
10.6 м²
Высота потолков
3.05 м
Этаж
4
Окна выходят
На улицу
О доме
Год постройки
2026
Этажность
4
Материал постройки
Панельный
Парковка
Многоуровневая
Расположение
Россия, Санкт-Петербург, Пушкинский район, посёлок Шушары, ЖК Пулково Lake
Купчино
12 мин.
Звёздная
13 мин.
Шушары
13 мин.
Дунайская
15 мин.
Московская
15 мин.
Проспект Ветеранов
16 мин.
Ленинский проспект
17 мин.
Проспект Славы
18 мин.
Ипотечный калькулятор
Заполните 1 анкету — получите предложения от десятков банков на специальных условиях
Программа ипотеки
Стоимость жилья, ₽
Первый взнос, ₽
Срок кредита
от 5.75%
Ставка
от 53 874 ₽
Платеж в месяц
Расчёт носит информационный характер и не является публичной офертой
Похожие объекты








2-комн. квартира, 33,8 м², 3/4 эт.
Купчино
12 мин.








2-комн. квартира, 36 м², 2/4 эт.
Купчино
12 мин.








2-комн. квартира, 38,2 м², 1/4 эт.
Купчино
12 мин.








2-комн. квартира, 35,5 м², 3/4 эт.
Купчино
12 мин.
Консультант по новостройкам
8 563 523 ₽
241 226 ₽/м²









