Подберём квартиру под ваш запрос и бюджет

Учитываем район, метраж, этаж и цели покупки. Покажем только подходящие варианты

Подберём надёжную новостройку под ваш бюджет

Учитываем локацию, срок сдачи и цели покупки — от жизни до инвестиций

Найдём дом, дачу или участок под ваши задачи

Расскажем, где лучше купить, что построить и как не переплатить

Поможем купить или продать коммерческую недвижимость

Подберём площадку под ваш бизнес или найдём покупателя на объект

Поможем сдать или найти жильё в аренду без хлопот

Найдём надёжных арендаторов или подберём подходящий вариант под ваш запрос

Всё для быстрой и безопасной сделки — в одном месте

Подбор ипотеки, страхование, продажа под ключ — без лишних хлопот

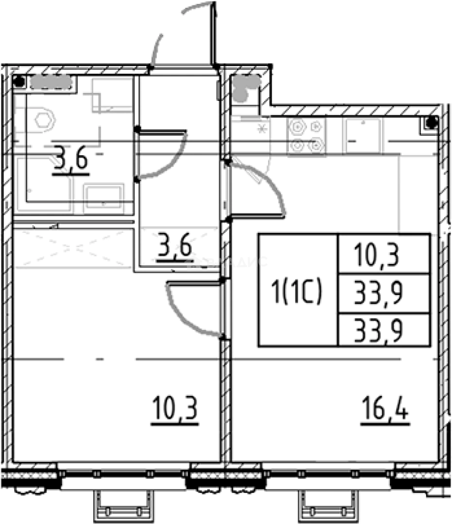
Продается 2-комн. квартира, 33.9  м²

Россия, Санкт-Петербург, Пушкинский район, посёлок Шушары, ЖК Пулково Lake

Купчино

12 мин.

33.9 м²

Общая площадь

10.3 м²

Жилая площадь

16.4 м²

Площадь кухни

3 из 4

Этаж

Описание

Жилой комплекс представляет собой проект малоэтажной застройки высотой не более 4 этажей. Всего в проекте возведено 22 жилых корпуса. В холлах выполнена дизайнерская отделка, установлены лифты Метеор. Для хранения вещей предусмотрены кладовые в подвальном этаже дома.

В проекте предложено множество планировочных решений: в наличии квартиры, как классического типа, так и европланировки. Также имеются квартиры с патио на 1 этаже, с мастер-спальнями, с саунами, каминами, двухуровневые и двухэтажные квартиры. Сдаются они с отделкой White Box и чистовой отделкой в 2 цветовых решениях и высотой потолков от 2.7 до 4.5 метров.

На территории комплекса на берегу Пулковского водохранилища расположен парк. В нем спроектированы места для занятий спортом, отдыха и прогулок, беговые и велосипедные дорожки, площадка для выгула собак. В проекте предусмотрены школа и 2 детских сада.

Жилой комплекс расположен в Пушкинском районе на пересечении Пулковского и Петербургского шоссе. Рядом расположены выезды на КАД и ЗСД, метро «Московская» и Аэропорт расположены в 20 минутах на автомобиле.

ID объекта: 1853965
Обновлено 13 октября

О квартире

Общая площадь

33.9 м²

Жилая площадь

10.3 м²

Площадь кухни

16.4 м²

Площадь комнат

10.3 м²

Высота потолков

2.75 м

Этаж

3

Окна выходят

На улицу

О доме

Год постройки

2026

Этажность

4

Материал постройки

Панельный

Парковка

Многоуровневая

Расположение

Россия, Санкт-Петербург, Пушкинский район, посёлок Шушары, ЖК Пулково Lake

Купчино

12 мин.

Звёздная

13 мин.

Шушары

13 мин.

Дунайская

15 мин.

Московская

15 мин.

Проспект Ветеранов

16 мин.

Ленинский проспект

17 мин.

Проспект Славы

18 мин.

Ипотечный калькулятор

Заполните 1 анкету — получите предложения от десятков банков на специальных условиях

Программа ипотеки

Семейная ипотека (от 5,75%)

Стоимость жилья, ₽

Первый взнос, ₽

Срок кредита

от 5.75%

Ставка

от 49 249 ₽

Платеж в месяц

Расчёт носит информационный характер и не является публичной офертой

Похожие объекты

. Вариант № 7597317, 0, площадь - 36 квм, цена 8105688 рублей
. Вариант № 7597317, 1, площадь - 36 квм, цена 8105688 рублей
. Вариант № 7597317, 2, площадь - 36 квм, цена 8105688 рублей
. Вариант № 7597317, 3, площадь - 36 квм, цена 8105688 рублей
. Вариант № 7597317, 4, площадь - 36 квм, цена 8105688 рублей
. Вариант № 7597317, 5, площадь - 36 квм, цена 8105688 рублей
. Вариант № 7597317, 6, площадь - 36 квм, цена 8105688 рублей
. Вариант № 7597317, 7, площадь - 36 квм, цена 8105688 рублей
1 из 8
8 105 688 ₽

2-комн. квартира, 36 м², 2/4 эт.

Купчино

12 мин.

Санкт-Петербург, Пушкинский район, посёлок Шушары, ЖК Пулково Lake
. Вариант № 7597296, 0, площадь - 33.8 квм, цена 7881889 рублей
. Вариант № 7597296, 1, площадь - 33.8 квм, цена 7881889 рублей
. Вариант № 7597296, 2, площадь - 33.8 квм, цена 7881889 рублей
. Вариант № 7597296, 3, площадь - 33.8 квм, цена 7881889 рублей
. Вариант № 7597296, 4, площадь - 33.8 квм, цена 7881889 рублей
. Вариант № 7597296, 5, площадь - 33.8 квм, цена 7881889 рублей
. Вариант № 7597296, 6, площадь - 33.8 квм, цена 7881889 рублей
. Вариант № 7597296, 7, площадь - 33.8 квм, цена 7881889 рублей
1 из 8
7 881 889 ₽

2-комн. квартира, 33,8 м², 3/4 эт.

Купчино

12 мин.

Санкт-Петербург, Пушкинский район, посёлок Шушары, ЖК Пулково Lake
. Вариант № 7597660, 0, площадь - 34 квм, цена 8257716 рублей
. Вариант № 7597660, 1, площадь - 34 квм, цена 8257716 рублей
. Вариант № 7597660, 2, площадь - 34 квм, цена 8257716 рублей
. Вариант № 7597660, 3, площадь - 34 квм, цена 8257716 рублей
. Вариант № 7597660, 4, площадь - 34 квм, цена 8257716 рублей
. Вариант № 7597660, 5, площадь - 34 квм, цена 8257716 рублей
. Вариант № 7597660, 6, площадь - 34 квм, цена 8257716 рублей
. Вариант № 7597660, 7, площадь - 34 квм, цена 8257716 рублей
1 из 8
8 257 716 ₽

2-комн. квартира, 34 м², 4/4 эт.

Купчино

12 мин.

Санкт-Петербург, Пушкинский район, посёлок Шушары, ЖК Пулково Lake
. Вариант № 7597667, 0, площадь - 34 квм, цена 8257716 рублей
. Вариант № 7597667, 1, площадь - 34 квм, цена 8257716 рублей
. Вариант № 7597667, 2, площадь - 34 квм, цена 8257716 рублей
. Вариант № 7597667, 3, площадь - 34 квм, цена 8257716 рублей
. Вариант № 7597667, 4, площадь - 34 квм, цена 8257716 рублей
. Вариант № 7597667, 5, площадь - 34 квм, цена 8257716 рублей
. Вариант № 7597667, 6, площадь - 34 квм, цена 8257716 рублей
. Вариант № 7597667, 7, площадь - 34 квм, цена 8257716 рублей
1 из 8
8 257 716 ₽

2-комн. квартира, 34 м², 4/4 эт.

Купчино

12 мин.

Санкт-Петербург, Пушкинский район, посёлок Шушары, ЖК Пулково Lake
. Вариант № 7597898, 0, площадь - 33.8 квм, цена 8223066 рублей
. Вариант № 7597898, 1, площадь - 33.8 квм, цена 8223066 рублей
. Вариант № 7597898, 2, площадь - 33.8 квм, цена 8223066 рублей
. Вариант № 7597898, 3, площадь - 33.8 квм, цена 8223066 рублей
. Вариант № 7597898, 4, площадь - 33.8 квм, цена 8223066 рублей
. Вариант № 7597898, 5, площадь - 33.8 квм, цена 8223066 рублей
. Вариант № 7597898, 6, площадь - 33.8 квм, цена 8223066 рублей
. Вариант № 7597898, 7, площадь - 33.8 квм, цена 8223066 рублей
1 из 8
8 223 066 ₽

2-комн. квартира, 33,8 м², 4/4 эт.

Купчино

12 мин.

Санкт-Петербург, Пушкинский район, посёлок Шушары, ЖК Пулково Lake
. Вариант № 7597511, 0, площадь - 36.7 квм, цена 8130995 рублей
. Вариант № 7597511, 1, площадь - 36.7 квм, цена 8130995 рублей
. Вариант № 7597511, 2, площадь - 36.7 квм, цена 8130995 рублей
. Вариант № 7597511, 3, площадь - 36.7 квм, цена 8130995 рублей
. Вариант № 7597511, 4, площадь - 36.7 квм, цена 8130995 рублей
. Вариант № 7597511, 5, площадь - 36.7 квм, цена 8130995 рублей
. Вариант № 7597511, 6, площадь - 36.7 квм, цена 8130995 рублей
. Вариант № 7597511, 7, площадь - 36.7 квм, цена 8130995 рублей
1 из 8
8 130 995 ₽

2-комн. квартира, 36,7 м², 2/4 эт.

Купчино

12 мин.

Санкт-Петербург, Пушкинский район, посёлок Шушары, ЖК Пулково Lake
7 828 391 ₽
Консультант по новостройкам

Консультант по новостройкам

7 828 391 ₽

230 926 ₽/м²