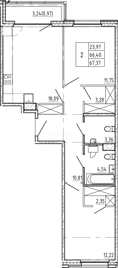
Продается 2-комн. квартира, 66.4 м²
Россия, Санкт-Петербург, 7-я линия Васильевского острова, 84
Василеостровская
9 мин.
66.4 м²
Общая площадь
23.97 м²
Жилая площадь
18.09 м²
Площадь кухни
4 из 9
Этаж
Описание
В проекте представлено множество планировочных решений, среди которых квартиры с террасами. Все лоты сдаются с базовой отделкой, высотой потолков до 3,36 метров и увеличенными или панорамными окнами.
Территория комплекса благоустроена хорошо — для жителей комплекса предоставляются услуги круглосуточного ресепшена с камерой хранения, доставки и зоной ожидания. Вход на территорию осуществляется через контроль доступа. Для автовладельцев предусмотрен собственный подземный паркинг на 116 мест.
Жилой комплекс расположен в исторической части Васильевского острова с хорошо развитой инфраструктурой. В пешей доступности имеется все необходимое — учебные заведения, медицинские учреждения, продовольственные магазины, кафе, рестораны, музей и театры. Дорога до станции метро «Василеостровская» займет 7 минут пешком, до станции «Спортивная» — 8 минут.
О квартире
Общая площадь
66.4 м²
Жилая площадь
23.97 м²
Площадь кухни
18.09 м²
Площадь комнат
11.75+12.22 м²
Высота потолков
2.74 м
Этаж
4
Окна выходят
На улицу
О доме
Год постройки
2027
Этажность
9
Материал постройки
Монолитный
Парковка
Подземная
Расположение
Россия, Санкт-Петербург, 7-я линия Васильевского острова, 84
Василеостровская
9 мин.
Спортивная
14 мин.
Чкаловская
22 мин.
Горный институт
24 мин.
Приморская
25 мин.
Крестовский остров
4 мин.
Горьковская
4 мин.
Адмиралтейская
4 мин.
Ипотечный калькулятор
Заполните 1 анкету — получите предложения от десятков банков на специальных условиях
Программа ипотеки
Стоимость жилья, ₽
Первый взнос, ₽
Срок кредита
от 5.75%
Ставка
от 167 912 ₽
Платеж в месяц
Расчёт носит информационный характер и не является публичной офертой
Похожие объекты









2-комн. квартира, 73,6 м², 2/6 эт.
Василеостровская
6 мин.









2-комн. квартира, 62,4 м², 2/6 эт.
Василеостровская
6 мин.









2-комн. квартира, 61,9 м², 5/6 эт.
Василеостровская
6 мин.









3-комн. квартира, 72,2 м², 1/6 эт.
Василеостровская
6 мин.
Консультант по новостройкам
26 690 418 ₽
401 965 ₽/м²








