Продается 2-комн. квартира, 64.6 м²
Россия, Санкт-Петербург, улица Руднева, 15
Проспект Просвещения
24 мин.
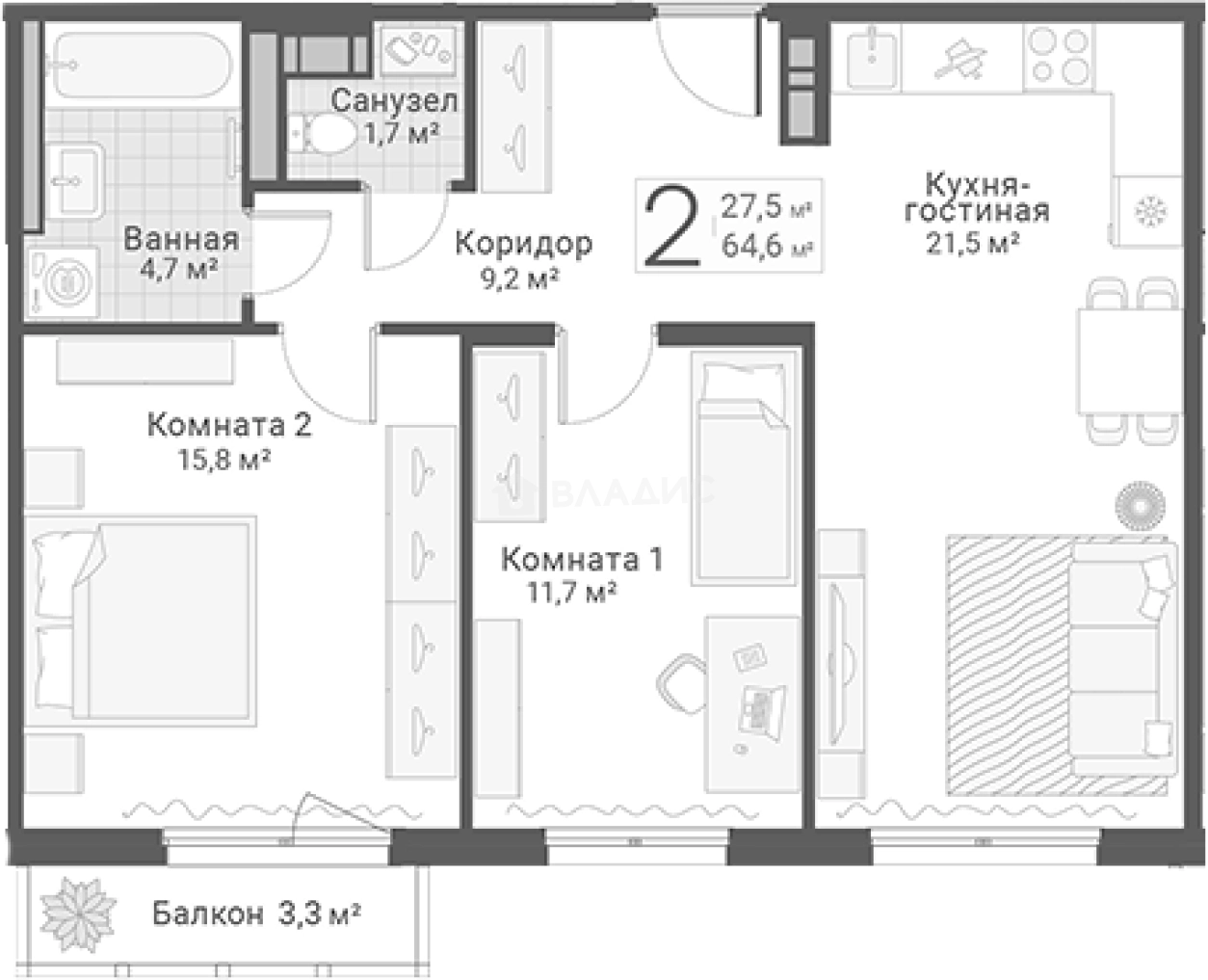
64.6 м²
Общая площадь
27.5 м²
Жилая площадь
21.5 м²
Площадь кухни
13 из 13
Этаж
Описание
В комплексе представлены квартиры различных планировок: от студий площадью 30 м² до 3-комнатных квартир 100 м². Все квартиры отличаются продуманной планировкой, отвечающей требованиям современной семьи. В каждом варианте предусмотрены просторные кухни-гостиные площадью от 15 м² до 31 м². Некоторые двухкомнатные квартиры оборудованы окнами в ванных комнатах, а в трёхкомнатных квартирах обязательно предусмотрены два санузла. Квартиры сдаются с чистовой отделкой, выполненной в тёплых нейтральных тонах. Включены виниловые обои, окрашенные потолки, износостойкий линолеум, межкомнатные двери увеличенной высоты, металлические входные двери с замками. Санузлы полностью укомплектованы сантехникой, смесителями и выводами для стиральной машины. Также выполнена разводка электрики с установленными розетками и выключателями.
Рядом с комплексом расположен муниципальный детский сад. Закрытые дворы, видеодомофоны, электронные ключи и современная система безопасности обеспечивают жителям спокойствие и комфорт. Для владельцев автомобилей предусмотрен отдельный мнгоуровневый паркинг.
Жилой комплекс расположен в Выборгском районе Санкт-Петербурга, недалеко от трёх станций метро «Проспект Просвещения», «Озерки» и «Гражданский проспект». Дома расположены в благоустроенном микрорайоне с полностью сложившейся инфраструктурой.
О квартире
Общая площадь
64.6 м²
Жилая площадь
27.5 м²
Площадь кухни
21.5 м²
Площадь комнат
11.7+15.8 м²
Высота потолков
2.6 м
Этаж
13
Окна выходят
На улицу
О доме
Год постройки
2025
Этажность
13
Материал постройки
Монолитный
Парковка
Многоуровневая
Расположение
Россия, Санкт-Петербург, улица Руднева, 15
Проспект Просвещения
24 мин.
Озерки
4 мин.
Парнас
4 мин.
Гражданский проспект
4 мин.
Академическая
6 мин.
Политехническая
6 мин.
Удельная
6 мин.
Девяткино
6 мин.
Ипотечный калькулятор
Заполните 1 анкету — получите предложения от десятков банков на специальных условиях
Программа ипотеки
Стоимость жилья, ₽
Первый взнос, ₽
Срок кредита
от 5.75%
Ставка
от 110 723 ₽
Платеж в месяц
Расчёт носит информационный характер и не является публичной офертой
Похожие объекты




2-комн. квартира, 70,0 м², 7/25 эт.
Проспект Просвещения
21 мин.







3-комн. квартира, 61,7 м², 2/13 эт.
Проспект Просвещения
25 мин.
Консультант по новостройкам
17 600 000 ₽
272 446 ₽/м²














