Подберём квартиру под ваш запрос и бюджет

Учитываем район, метраж, этаж и цели покупки. Покажем только подходящие варианты

Подберём надёжную новостройку под ваш бюджет

Учитываем локацию, срок сдачи и цели покупки — от жизни до инвестиций

Найдём дом, дачу или участок под ваши задачи

Расскажем, где лучше купить, что построить и как не переплатить

Поможем купить или продать коммерческую недвижимость

Подберём площадку под ваш бизнес или найдём покупателя на объект

Поможем сдать или найти жильё в аренду без хлопот

Найдём надёжных арендаторов или подберём подходящий вариант под ваш запрос

Всё для быстрой и безопасной сделки — в одном месте

Подбор ипотеки, страхование, продажа под ключ — без лишних хлопот

Продается 2-комн. квартира, 31.2  м²

Россия, Санкт-Петербург, Красногвардейский район, муниципальный округ Полюстрово, жилой комплекс Ручьи

Академическая

6 мин.

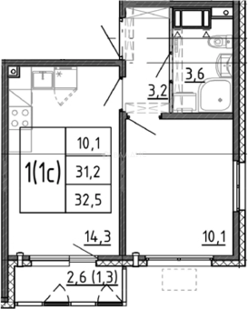
31.2 м²

Общая площадь

10.1 м²

Жилая площадь

14.3 м²

Площадь кухни

6 из 25

Этаж

Описание

Жилой комплекс включает в себя 21 жилых корпусов высотой 19-25 этажей, которые построены по бесшовной технологии. Яркие лаконичные фасады окрашены штукатуркой разных цветов. В каждом подъезде спроектированы колясочные и диспетчерские. Для владельцев велосипедов предусмотрены велопарковки.

В ЖК предложено множество планировочных решений: в наличии квартиры, как классического типа,так и европланировки. Квартиры сдаются с чистовой отделкой в нейтральных тонах. В каждой квартире предусмотрены клапаны микропроветривания, благодаря чему в комнатах обеспечена постоянная циркуляция свежего воздуха.

Территория комплекса благоустроена по принципу «безбарьерное пространство». Двор закрыт от машин. Проект включает в себя два детских сада, школу, медицинские и спортивные объекты, а также магазины на первых этажах. Для автовладельцев предусмотрены наземные паркинги и гостевые автопарковки с зарядными станциями для электромобилей. На придомовой территории выполнен ландшафтный дизайн и проведено озеленение. Во дворах находятся детские и спортивные площадки, пешеходные дорожки и места для отдыха.

Жилой комплекс расположен в Красногвардейском районе с развитой инфраструктурой и сетью общественного транспорта. В пешей доступности работают торговые центры и магазины, отделения почты и банков, кафе, рестораны, медицинские учреждения и спортивные комплексы. Метро «Академическая» находится в 10 минутах транспортом, 2 км до выезда на КАД.

ID объекта: 1855757
Обновлено 13 октября

О квартире

Общая площадь

31.2 м²

Жилая площадь

10.1 м²

Площадь кухни

14.3 м²

Площадь комнат

10.1 м²

Высота потолков

2.54 м

Этаж

6

Окна выходят

На улицу

О доме

Год постройки

2026

Этажность

25

Материал постройки

Панельный

Материал перекрытий

Монолитные

Отопление

Центральное

Парковка

Многоуровневая

Расположение

Россия, Санкт-Петербург, Красногвардейский район, муниципальный округ Полюстрово, жилой комплекс Ручьи

Академическая

6 мин.

Гражданский проспект

7 мин.

Политехническая

8 мин.

Площадь Мужества

8 мин.

Девяткино

9 мин.

Лесная

11 мин.

Выборгская

11 мин.

Ладожская

12 мин.

Ипотечный калькулятор

Заполните 1 анкету — получите предложения от десятков банков на специальных условиях

Программа ипотеки

Семейная ипотека (от 5,75%)

Стоимость жилья, ₽

Первый взнос, ₽

Срок кредита

от 5.75%

Ставка

от 44 541 ₽

Платеж в месяц

Расчёт носит информационный характер и не является публичной офертой

Похожие объекты

. Вариант № 8062822, 0, площадь - 27.18 квм, цена 7424380 рублей
. Вариант № 8062822, 1, площадь - 27.18 квм, цена 7424380 рублей
. Вариант № 8062822, 2, площадь - 27.18 квм, цена 7424380 рублей
. Вариант № 8062822, 3, площадь - 27.18 квм, цена 7424380 рублей
. Вариант № 8062822, 4, площадь - 27.18 квм, цена 7424380 рублей
. Вариант № 8062822, 5, площадь - 27.18 квм, цена 7424380 рублей
1 из 6
7 424 380 ₽

Студия, 27,2 м², 9/9 эт.

Площадь Мужества

4 мин.

Санкт-Петербург, Калининский район, Герасимовская улица, 5к2
. Вариант № 8062899, 0, площадь - 27.18 квм, цена 7786670 рублей
. Вариант № 8062899, 1, площадь - 27.18 квм, цена 7786670 рублей
. Вариант № 8062899, 2, площадь - 27.18 квм, цена 7786670 рублей
. Вариант № 8062899, 3, площадь - 27.18 квм, цена 7786670 рублей
. Вариант № 8062899, 4, площадь - 27.18 квм, цена 7786670 рублей
. Вариант № 8062899, 5, площадь - 27.18 квм, цена 7786670 рублей
1 из 6
7 786 670 ₽

Студия, 27,2 м², 7/9 эт.

Площадь Мужества

4 мин.

Санкт-Петербург, Калининский район, Герасимовская улица, 5к2
. Вариант № 8062884, 0, площадь - 27.18 квм, цена 7786126 рублей
. Вариант № 8062884, 1, площадь - 27.18 квм, цена 7786126 рублей
. Вариант № 8062884, 2, площадь - 27.18 квм, цена 7786126 рублей
. Вариант № 8062884, 3, площадь - 27.18 квм, цена 7786126 рублей
. Вариант № 8062884, 4, площадь - 27.18 квм, цена 7786126 рублей
. Вариант № 8062884, 5, площадь - 27.18 квм, цена 7786126 рублей
1 из 6
7 786 126 ₽

Студия, 27,2 м², 5/9 эт.

Площадь Мужества

4 мин.

Санкт-Петербург, Калининский район, Герасимовская улица, 5к2
. Вариант № 7604545, 0, площадь - 32.5 квм, цена 6812162 рублей
. Вариант № 7604545, 1, площадь - 32.5 квм, цена 6812162 рублей
. Вариант № 7604545, 2, площадь - 32.5 квм, цена 6812162 рублей
. Вариант № 7604545, 3, площадь - 32.5 квм, цена 6812162 рублей
. Вариант № 7604545, 4, площадь - 32.5 квм, цена 6812162 рублей
. Вариант № 7604545, 5, площадь - 32.5 квм, цена 6812162 рублей
. Вариант № 7604545, 6, площадь - 32.5 квм, цена 6812162 рублей
. Вариант № 7604545, 7, площадь - 32.5 квм, цена 6812162 рублей
1 из 8
6 812 162 ₽

2-комн. квартира, 32,5 м², 14/25 эт.

Академическая

6 мин.

Санкт-Петербург, Красногвардейский район, муниципальный округ Полюстрово, жилой комплекс Ручьи
. Вариант № 9510711, 0, площадь - 30.7 квм, цена 6403252 рублей
. Вариант № 9510711, 1, площадь - 30.7 квм, цена 6403252 рублей
. Вариант № 9510711, 2, площадь - 30.7 квм, цена 6403252 рублей
. Вариант № 9510711, 3, площадь - 30.7 квм, цена 6403252 рублей
. Вариант № 9510711, 4, площадь - 30.7 квм, цена 6403252 рублей
. Вариант № 9510711, 5, площадь - 30.7 квм, цена 6403252 рублей
. Вариант № 9510711, 6, площадь - 30.7 квм, цена 6403252 рублей
1 из 7
6 403 252 ₽

1-комн. квартира, 30,7 м², 16/25 эт.

Академическая

6 мин.

Санкт-Петербург, Красногвардейский район, муниципальный округ Полюстрово, жилой комплекс Ручьи
. Вариант № 9510729, 0, площадь - 34.7 квм, цена 6915883 рублей
. Вариант № 9510729, 1, площадь - 34.7 квм, цена 6915883 рублей
. Вариант № 9510729, 2, площадь - 34.7 квм, цена 6915883 рублей
. Вариант № 9510729, 3, площадь - 34.7 квм, цена 6915883 рублей
. Вариант № 9510729, 4, площадь - 34.7 квм, цена 6915883 рублей
. Вариант № 9510729, 5, площадь - 34.7 квм, цена 6915883 рублей
. Вариант № 9510729, 6, площадь - 34.7 квм, цена 6915883 рублей
1 из 7
6 915 883 ₽

1-комн. квартира, 34,7 м², 15/25 эт.

Академическая

6 мин.

Санкт-Петербург, Красногвардейский район, муниципальный округ Полюстрово, жилой комплекс Ручьи
7 079 962 ₽
Консультант по новостройкам

Консультант по новостройкам

7 079 962 ₽

226 922 ₽/м²