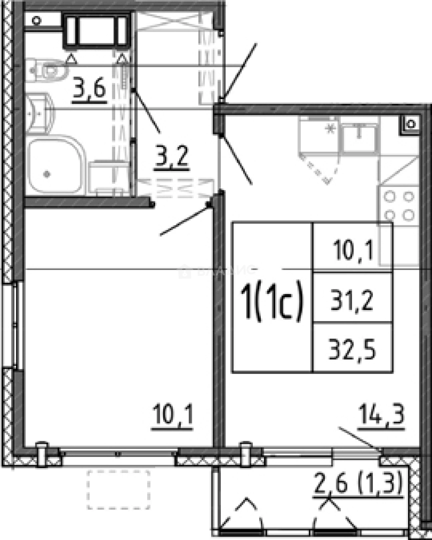
Продается 2-комн. квартира, 31.2 м²
Россия, Санкт-Петербург, Красногвардейский район, муниципальный округ Полюстрово, жилой комплекс Ручьи
Академическая
6 мин.
31.2 м²
Общая площадь
10.1 м²
Жилая площадь
14.3 м²
Площадь кухни
20 из 25
Этаж
Описание
В ЖК предложено множество планировочных решений: в наличии квартиры, как классического типа,так и европланировки. Квартиры сдаются с чистовой отделкой в нейтральных тонах. В каждой квартире предусмотрены клапаны микропроветривания, благодаря чему в комнатах обеспечена постоянная циркуляция свежего воздуха.
Территория комплекса благоустроена по принципу «безбарьерное пространство». Двор закрыт от машин. Проект включает в себя два детских сада, школу, медицинские и спортивные объекты, а также магазины на первых этажах. Для автовладельцев предусмотрены наземные паркинги и гостевые автопарковки с зарядными станциями для электромобилей. На придомовой территории выполнен ландшафтный дизайн и проведено озеленение. Во дворах находятся детские и спортивные площадки, пешеходные дорожки и места для отдыха.
Жилой комплекс расположен в Красногвардейском районе с развитой инфраструктурой и сетью общественного транспорта. В пешей доступности работают торговые центры и магазины, отделения почты и банков, кафе, рестораны, медицинские учреждения и спортивные комплексы. Метро «Академическая» находится в 10 минутах транспортом, 2 км до выезда на КАД.
О квартире
Общая площадь
31.2 м²
Жилая площадь
10.1 м²
Площадь кухни
14.3 м²
Площадь комнат
10.1 м²
Высота потолков
2.54 м
Этаж
20
Окна выходят
На улицу
О доме
Год постройки
2026
Этажность
25
Материал постройки
Панельный
Материал перекрытий
Монолитные
Отопление
Центральное
Парковка
Многоуровневая
Расположение
Россия, Санкт-Петербург, Красногвардейский район, муниципальный округ Полюстрово, жилой комплекс Ручьи
Академическая
6 мин.
Гражданский проспект
7 мин.
Политехническая
8 мин.
Площадь Мужества
8 мин.
Девяткино
9 мин.
Лесная
11 мин.
Выборгская
11 мин.
Ладожская
12 мин.
Ипотечный калькулятор
Заполните 1 анкету — получите предложения от десятков банков на специальных условиях
Программа ипотеки
Стоимость жилья, ₽
Первый взнос, ₽
Срок кредита
от 5.75%
Ставка
от 45 594 ₽
Платеж в месяц
Расчёт носит информационный характер и не является публичной офертой
Похожие объекты






Студия, 27,2 м², 9/9 эт.
Площадь Мужества
4 мин.






Студия, 27,2 м², 7/9 эт.
Площадь Мужества
4 мин.






Студия, 27,2 м², 5/9 эт.
Площадь Мужества
4 мин.








2-комн. квартира, 32,5 м², 14/25 эт.
Академическая
6 мин.
Консультант по новостройкам
7 247 337 ₽
232 287 ₽/м²













