Продается 3-комн. квартира, 52.9 м²
Россия, Санкт-Петербург, Красногвардейский район, муниципальный округ Полюстрово, жилой комплекс Ручьи
Академическая
6 мин.
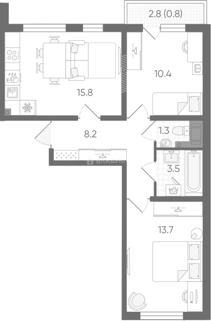
52.9 м²
Общая площадь
24.1 м²
Жилая площадь
15.8 м²
Площадь кухни
8 из 25
Этаж
Описание
В ЖК предложено множество планировочных решений: в наличии квартиры, как классического типа,так и европланировки. Квартиры сдаются с чистовой отделкой в нейтральных тонах. В каждой квартире предусмотрены клапаны микропроветривания, благодаря чему в комнатах обеспечена постоянная циркуляция свежего воздуха.
Территория комплекса благоустроена по принципу «безбарьерное пространство». Двор закрыт от машин. Проект включает в себя два детских сада, школу, медицинские и спортивные объекты, а также магазины на первых этажах. Для автовладельцев предусмотрены наземные паркинги и гостевые автопарковки с зарядными станциями для электромобилей. На придомовой территории выполнен ландшафтный дизайн и проведено озеленение. Во дворах находятся детские и спортивные площадки, пешеходные дорожки и места для отдыха.
Жилой комплекс расположен в Красногвардейском районе с развитой инфраструктурой и сетью общественного транспорта. В пешей доступности работают торговые центры и магазины, отделения почты и банков, кафе, рестораны, медицинские учреждения и спортивные комплексы. Метро «Академическая» находится в 10 минутах транспортом, 2 км до выезда на КАД.
О квартире
Общая площадь
52.9 м²
Жилая площадь
24.1 м²
Площадь кухни
15.8 м²
Площадь комнат
10.4+13.7 м²
Высота потолков
2.54 м
Этаж
8
Окна выходят
На улицу
О доме
Год постройки
2025
Этажность
25
Материал постройки
Панельный
Материал перекрытий
Монолитные
Отопление
Центральное
Парковка
Многоуровневая
Расположение
Россия, Санкт-Петербург, Красногвардейский район, муниципальный округ Полюстрово, жилой комплекс Ручьи
Академическая
6 мин.
Гражданский проспект
7 мин.
Политехническая
8 мин.
Площадь Мужества
8 мин.
Девяткино
9 мин.
Лесная
10 мин.
Выборгская
11 мин.
Ладожская
11 мин.
Ипотечный калькулятор
Заполните 1 анкету — получите предложения от десятков банков на специальных условиях
Программа ипотеки
Стоимость жилья, ₽
Первый взнос, ₽
Срок кредита
от 5.75%
Ставка
от 77 318 ₽
Платеж в месяц
Расчёт носит информационный характер и не является публичной офертой
Похожие объекты




3-комн. квартира, 52,9 м², 19/25 эт.
Академическая
6 мин.







3-комн. квартира, 52,3 м², 9/25 эт.
Академическая
6 мин.








3-комн. квартира, 56,2 м², 8/25 эт.
Академическая
6 мин.







3-комн. квартира, 56,2 м², 10/25 эт.
Академическая
6 мин.
Консультант по новостройкам
12 290 104 ₽
232 328 ₽/м²











