Продается 1-комн. квартира, 35.46 м²
Россия, Санкт-Петербург, Пушкинский район, посёлок Шушары, Новгородский проспект, 2к3
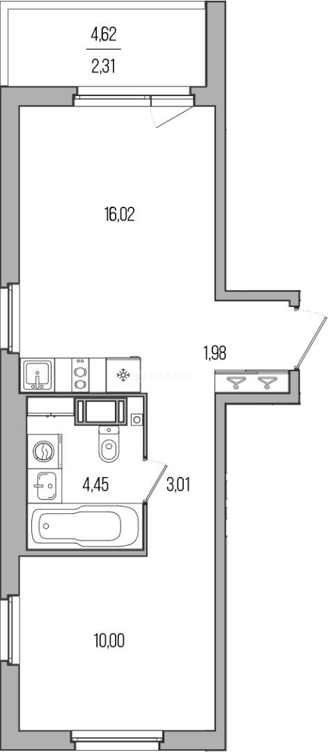
35.46 м²
Общая площадь
10 м²
Жилая площадь
16.02 м²
Площадь кухни
12 из 26
Этаж
Описание
В жилом комплексе «Simple» предложено множество планировочных решений: можно подобрать квартиру с большой кухней-гостиной, с панорамным окном, эркером или окном в ванной. Они сдаются без отделки с высотой потолков 2,6 метров. Проектом предусмотрены полноценные лоджии и балконы глубиной до полутора метров и общей площадью до 5 квадратных метров.
Благоустройство ЖК «Simple» предусматривает круглогодичные зеленые растения и деревья. Во дворе расположены свои детский сад и школа. Для спорта и отдыха созданы специальные интерактивные пространства. Во дворе и на территории домов ведется круглосуточное видеонаблюдение. На первых этажах расположены коммерческие помещения. Для владельцев автомобилей предусмотрены стоянка и отдельный многоуровневый паркинг. В подземной части домов находится 160 индивидуальных кладовых помещений.
Жилой комплекс «Simple» расположен в Пушкинском районе. Рядом находятся детские сады, школы, магазины, медицинские учреждения и многое другое. До станции метро «Купчино» — 15 минут транспортом.
О квартире
Общая площадь
35.46 м²
Жилая площадь
10 м²
Площадь кухни
16.02 м²
Площадь комнат
10 м²
Высота потолков
2.6 м
Подъезд
1
Этаж
12
Окна выходят
На улицу
О доме
Год постройки
2023
Этажность
26
Материал постройки
Монолитный
Материал перекрытий
Монолитные
Отопление
Центральное
Пассажирских лифтов
1
Грузовых лифтов
1
Парковка
Многоуровневая
Расположение
Россия, Санкт-Петербург, Пушкинский район, посёлок Шушары, Новгородский проспект, 2к3
Ипотечный калькулятор
Заполните 1 анкету — получите предложения от десятков банков на специальных условиях
Программа ипотеки
Стоимость жилья, ₽
Первый взнос, ₽
Срок кредита
от 5.75%
Ставка
от 46 914 ₽
Платеж в месяц
Расчёт носит информационный характер и не является публичной офертой
Похожие объекты











1-комн. квартира, 39,5 м², 7/12 эт.
Звёздная
4 мин.










1-комн. квартира, 39,5 м², 9/12 эт.
Звёздная
4 мин.











1-комн. квартира, 39,5 м², 5/12 эт.
Звёздная
4 мин.










1-комн. квартира, 39,5 м², 7/12 эт.
Звёздная
4 мин.
Консультант по новостройкам
7 457 100 ₽
210 297 ₽/м²









