Продается 1-комн. квартира, 30.75 м²
Россия, Санкт-Петербург, Пушкинский район, посёлок Шушары, Новгородский проспект, 2к3
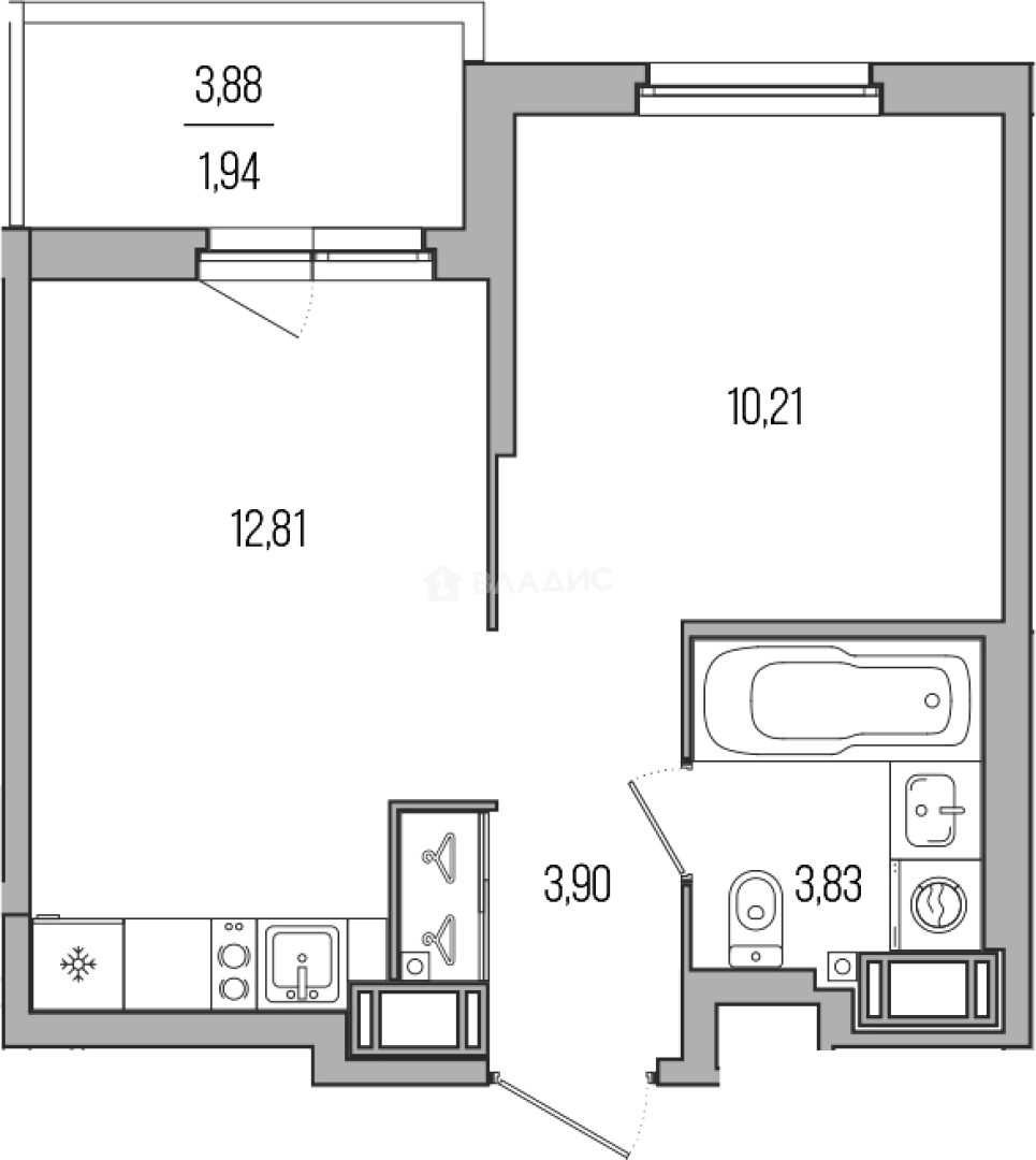
30.75 м²
Общая площадь
10.21 м²
Жилая площадь
12.81 м²
Площадь кухни
18 из 26
Этаж
Описание
В жилом комплексе «Simple» предложено множество планировочных решений: можно подобрать квартиру с большой кухней-гостиной, с панорамным окном, эркером или окном в ванной. Они сдаются без отделки с высотой потолков 2,6 метров. Проектом предусмотрены полноценные лоджии и балконы глубиной до полутора метров и общей площадью до 5 квадратных метров.
Благоустройство ЖК «Simple» предусматривает круглогодичные зеленые растения и деревья. Во дворе расположены свои детский сад и школа. Для спорта и отдыха созданы специальные интерактивные пространства. Во дворе и на территории домов ведется круглосуточное видеонаблюдение. На первых этажах расположены коммерческие помещения. Для владельцев автомобилей предусмотрены стоянка и отдельный многоуровневый паркинг. В подземной части домов находится 160 индивидуальных кладовых помещений.
Жилой комплекс «Simple» расположен в Пушкинском районе. Рядом находятся детские сады, школы, магазины, медицинские учреждения и многое другое. До станции метро «Купчино» — 15 минут транспортом.
О квартире
Общая площадь
30.75 м²
Жилая площадь
10.21 м²
Площадь кухни
12.81 м²
Площадь комнат
10.21 м²
Высота потолков
2.6 м
Подъезд
1
Этаж
18
Окна выходят
На улицу
О доме
Год постройки
2023
Этажность
26
Материал постройки
Монолитный
Материал перекрытий
Монолитные
Отопление
Центральное
Пассажирских лифтов
1
Грузовых лифтов
1
Парковка
Многоуровневая
Расположение
Россия, Санкт-Петербург, Пушкинский район, посёлок Шушары, Новгородский проспект, 2к3
Ипотечный калькулятор
Заполните 1 анкету — получите предложения от десятков банков на специальных условиях
Программа ипотеки
Стоимость жилья, ₽
Первый взнос, ₽
Срок кредита
от 5.75%
Ставка
от 44 566 ₽
Платеж в месяц
Расчёт носит информационный характер и не является публичной офертой
Консультант по новостройкам
7 084 000 ₽
230 374 ₽/м²
























