Продается 3-комн. квартира, 95.43 м²
Россия, Санкт-Петербург, улица Чапаева, 17к2
Горьковская
13 мин.
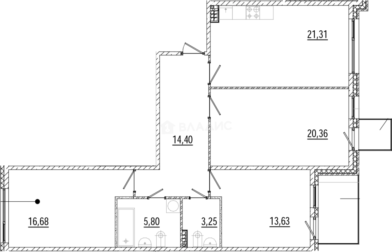
95.43 м²
Общая площадь
50.67 м²
Жилая площадь
21.31 м²
Площадь кухни
4 из 9
Этаж
Описание
В жилом комплексе «Мануфактура James Beck» реализовано более 50 видов уникальных планировок. В проекте можно подобрать двухуровневые квартиры с террасами, пентхаусы, уникальные квартиры под скатной крышей с потолками до 6 метров. С верхних этажей ЖК открывается панорама жилых районов и потрясающий вид на центр города и Большую Невку.
Внутренняя территория ЖК «Мануфактура James Beck» огорожена и полностью изолирована от внешней среды. В проекте предусмотрены видеонаблюдение и круглосуточная охрана. Во дворе спроектированы игровые и спортивные площадки, ландшафтный парк с дорожками, фонарями и эргономичными скамейками для отдыха. Для владельцев автомобилей спроектирован подземный паркинг, в который можно попасть с жилых этажей как на лифте, так и по лестнице.
Жилой комплекс «Мануфактура James Beck» на Петроградской набережной возведен на территории с богатой историей и инфраструктурой, в непосредственной близости от акватории Невы и шаговой доступности от Ботанического сада. В пешей доступности расположены магазины, детские сады, школы, кафе, салоны красоты, медицинские учреждения.
О квартире
Общая площадь
95.43 м²
Жилая площадь
50.67 м²
Площадь кухни
21.31 м²
Площадь комнат
20.36+13.63+16.68 м²
Высота потолков
3 м
Подъезд
10
Этаж
4
Окна выходят
На улицу
О доме
Год постройки
2024
Этажность
9
Материал постройки
Кирпично-монолитный
Материал перекрытий
Монолитные
Отопление
Центральное
Грузовых лифтов
1
Парковка
Подземная
Расположение
Россия, Санкт-Петербург, улица Чапаева, 17к2
Горьковская
13 мин.
Выборгская
14 мин.
Петроградская
15 мин.
Площадь Ленина
19 мин.
Чкаловская
28 мин.
Лесная
30 мин.
Спортивная
4 мин.
Чернышевская
4 мин.
Ипотечный калькулятор
Заполните 1 анкету — получите предложения от десятков банков на специальных условиях
Программа ипотеки
Стоимость жилья, ₽
Первый взнос, ₽
Срок кредита
от 5.75%
Ставка
от 255 075 ₽
Платеж в месяц
Расчёт носит информационный характер и не является публичной офертой
Похожие объекты












3-комн. квартира, 92,6 м², 3/8 эт.
Петроградская
3 мин.






4-комн. квартира, 85,7 м², 3/10 эт.
Выборгская
5 мин.



3-комн. квартира, 91,8 м², 5/10 эт.
Чёрная речка
14 мин.






3-комн. квартира, 95,0 м², 7/10 эт.
Чёрная речка
14 мин.
Консультант по новостройкам
40 545 500 ₽
424 872 ₽/м²









