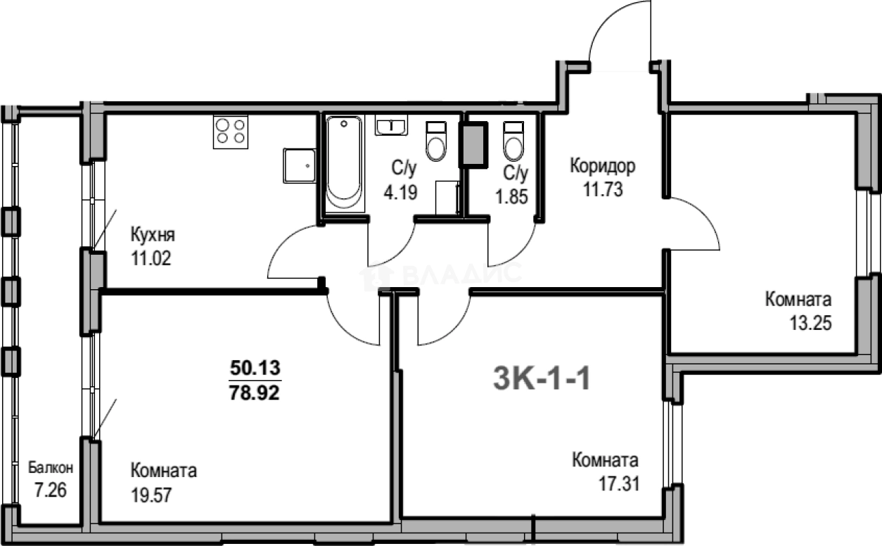
Продается 3-комн. квартира, 78.92 м²
Россия, Санкт-Петербург, Курляндская улица, 10-12
Балтийская
9 мин.
78.92 м²
Общая площадь
50.13 м²
Жилая площадь
11.02 м²
Площадь кухни
5 из 10
Этаж
Описание
В комплексе «Wellamo» предложено множество планировочных решений: в наличии квартиры, как классического типа, так и европланировки, есть возможность подобрать планировку с сауной. Изначально во всех квартирах предусматривается подчистовая отделка, дополнительно можно заказать чистовую отделку. Широкие окна позволяют создать необходимую инсоляцию. На видовых этажах находятся квартиры с террасами.
У комплекса «Wellamo» закрытая охраняемая территория, благоустроенная в соответствии с индивидуальным проектом ландшафтного дизайна. Озеленение включает в себя можжевельники, обильно цветущую спирею, сортовую сирень, клумбы с цветами. На придомовой территории предусмотрен игровой комплекс с разнообразным набором функций и развивающими элементами для детей разных возрастов. Спортивное оборудование представляет собой многофункциональный тренажер для различных групп мышц. Для владельцев автомобилей предусмотрен подземный паркинг, в который можно спускаться на лифте.
Проект «Wellamo» находится в Адмиралтейском районе. Внешняя инфраструктура развита, в пешей доступности: магазины, школы, детские сады, медицинские учреждения. Набережная обводного канала находится всего в 400 метрах от комплекса, а в 15 минутах пешком расположен парк Екатерингоф.
О квартире
Общая площадь
78.92 м²
Жилая площадь
50.13 м²
Площадь кухни
11.02 м²
Площадь комнат
19.57+17.31+13.25 м²
Подъезд
1
Этаж
5
Окна выходят
На улицу
О доме
Год постройки
2023
Этажность
10
Материал постройки
Кирпично-монолитный
Материал перекрытий
Монолитные
Отопление
Центральное
Пассажирских лифтов
1
Грузовых лифтов
1
Парковка
Подземная
Расположение
Россия, Санкт-Петербург, Курляндская улица, 10-12
Балтийская
9 мин.
Нарвская
17 мин.
Фрунзенская
21 мин.
Садовая
28 мин.
Сенная площадь
30 мин.
Спасская
30 мин.
Ипотечный калькулятор
Заполните 1 анкету — получите предложения от десятков банков на специальных условиях
Программа ипотеки
Стоимость жилья, ₽
Первый взнос, ₽
Срок кредита
от 5.75%
Ставка
от 142 320 ₽
Платеж в месяц
Расчёт носит информационный характер и не является публичной офертой
Похожие объекты








3-комн. квартира, 70,5 м², 5/12 эт.
Московские ворота
8 мин.






3-комн. квартира, 78,9 м², 6/10 эт.
Балтийская
9 мин.






4-комн. квартира, 86,3 м², 6/10 эт.
Балтийская
9 мин.








Студия, 70,9 м², 7/4 эт.
Звенигородская
2 мин.
Консультант по новостройкам
22 622 418 ₽
286 650 ₽/м²











