Продается 2-комн. квартира, 42.4 м²
Россия, Санкт-Петербург, Ивинская улица, 1к2
Беговая
9 мин.
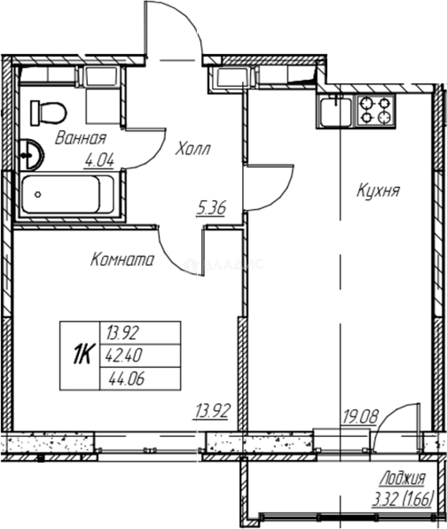
42.4 м²
Общая площадь
13.92 м²
Жилая площадь
19.08 м²
Площадь кухни
20 из 16
Этаж
Описание
В жилом комплексе предложено множество планировочных решений: в наличии квартиры, как классического типа, так и европланировки. Сдаются они с чистовой отделкой, стандартными окнами и высотой потолков 2,75 метра. В квартирах заранее предусмотрены гардеробные, ниши или выделены специальные зоны под места хранения.
На закрытой территории комплекса выполнен ландшафтный дизайн, предусмотрены общественные пространства, парк и прогулочные бульвары, места для отдыха и спорта, открытая вода для сапсерфинга, сеть велодорожек, связывающая весь жилой комплекс. В каждом дворе оборудованы детские площадки для разных возрастов. На территории работают 2 детских сада, поликлиника и 2 школы, одна из которых с Центром обучения «Техноспейс» и кластером ГАСУ. На первых этажах жилых зданий расположены коммерческие помещения. Для владельцев автомобилей предусмотрен отдельный многоуровневый паркинг.
ЖК расположен в северо-западной части Приморского района. Инфраструктура района развита: променад, физкультурно-оздоровительный комплекс с бассейном, больницы и поликлиники, торговые центры и супермаркеты, школы и детские сады. В 10 минутах транспортом выезд на КАД. Метро «Беговая» в 20 минутах транспортом и метро «Старая Деревня» в 25 минутах транспортом.
О квартире
Общая площадь
42.4 м²
Жилая площадь
13.92 м²
Площадь кухни
19.08 м²
Площадь комнат
13.92 м²
Высота потолков
2.75 м
Этаж
20
Окна выходят
На улицу
О доме
Год постройки
2025
Этажность
16
Материал постройки
Кирпично-монолитный
Парковка
Многоуровневая
Расположение
Россия, Санкт-Петербург, Ивинская улица, 1к2
Беговая
9 мин.
Комендантский проспект
11 мин.
Зенит
11 мин.
Старая Деревня
12 мин.
Крестовский остров
14 мин.
Пионерская
14 мин.
Удельная
15 мин.
Чёрная речка
16 мин.
Ипотечный калькулятор
Заполните 1 анкету — получите предложения от десятков банков на специальных условиях
Программа ипотеки
Стоимость жилья, ₽
Первый взнос, ₽
Срок кредита
от 5.75%
Ставка
от 58 905 ₽
Платеж в месяц
Расчёт носит информационный характер и не является публичной офертой
Похожие объекты














2-комн. квартира, 38,1 м², 16/16 эт.
Беговая
9 мин.














2-комн. квартира, 37,1 м², 17/16 эт.
Беговая
9 мин.












2-комн. квартира, 38,1 м², 6/16 эт.
Беговая
9 мин.













2-комн. квартира, 37,1 м², 15/16 эт.
Беговая
9 мин.
Консультант по новостройкам
9 363 272 ₽
220 832 ₽/м²
































