Продается 3-комн. квартира, 55.92 м²
Россия, Санкт-Петербург, Ивинская улица, 1к1
Беговая
9 мин.
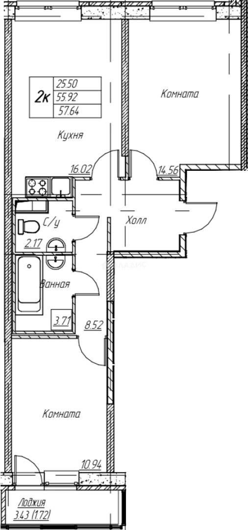
55.92 м²
Общая площадь
25.5 м²
Жилая площадь
16.02 м²
Площадь кухни
2 из 16
Этаж
Описание
В жилом комплексе предложено множество планировочных решений: в наличии квартиры, как классического типа, так и европланировки. Сдаются они с чистовой отделкой, стандартными окнами и высотой потолков 2,75 метра. В квартирах заранее предусмотрены гардеробные, ниши или выделены специальные зоны под места хранения.
На закрытой территории комплекса выполнен ландшафтный дизайн, предусмотрены общественные пространства, парк и прогулочные бульвары, места для отдыха и спорта, открытая вода для сапсерфинга, сеть велодорожек, связывающая весь жилой комплекс. В каждом дворе оборудованы детские площадки для разных возрастов. На территории работают 2 детских сада, поликлиника и 2 школы, одна из которых с Центром обучения «Техноспейс» и кластером ГАСУ. На первых этажах жилых зданий расположены коммерческие помещения. Для владельцев автомобилей предусмотрен отдельный многоуровневый паркинг.
ЖК расположен в северо-западной части Приморского района. Инфраструктура района развита: променад, физкультурно-оздоровительный комплекс с бассейном, больницы и поликлиники, торговые центры и супермаркеты, школы и детские сады. В 10 минутах транспортом выезд на КАД. Метро «Беговая» в 20 минутах транспортом и метро «Старая Деревня» в 25 минутах транспортом.
О квартире
Общая площадь
55.92 м²
Жилая площадь
25.5 м²
Площадь кухни
16.02 м²
Площадь комнат
14.56+10.94 м²
Высота потолков
2.75 м
Этаж
2
Окна выходят
На улицу
О доме
Год постройки
2025
Этажность
16
Материал постройки
Кирпично-монолитный
Парковка
Многоуровневая
Расположение
Россия, Санкт-Петербург, Ивинская улица, 1к1
Беговая
9 мин.
Комендантский проспект
11 мин.
Зенит
11 мин.
Старая Деревня
12 мин.
Крестовский остров
14 мин.
Пионерская
14 мин.
Удельная
15 мин.
Чёрная речка
16 мин.
Ипотечный калькулятор
Заполните 1 анкету — получите предложения от десятков банков на специальных условиях
Программа ипотеки
Стоимость жилья, ₽
Первый взнос, ₽
Срок кредита
от 5.75%
Ставка
от 82 558 ₽
Платеж в месяц
Расчёт носит информационный характер и не является публичной офертой
Похожие объекты














3-комн. квартира, 54,3 м², 3/16 эт.
Беговая
9 мин.
















3-комн. квартира, 53,9 м², 20/16 эт.
Беговая
9 мин.














3-комн. квартира, 53,1 м², 18/16 эт.
Беговая
9 мин.














3-комн. квартира, 53,1 м², 17/16 эт.
Беговая
9 мин.
Консультант по новостройкам
13 123 056 ₽
234 676 ₽/м²















