Продается 2-комн. квартира, 43.53 м²
Россия, Санкт-Петербург, Невский район, муниципальный округ № 54
Елизаровская
16 мин.
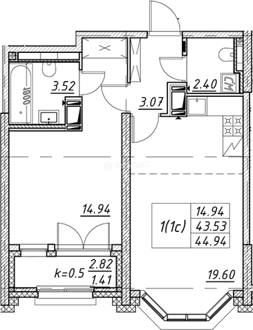
43.53 м²
Общая площадь
14.94 м²
Жилая площадь
19.6 м²
Площадь кухни
10 из 18
Этаж
Описание
Планировки различаются в каждом корпусе, они представлены как классическими так и европланировками. В некоторых квартирах спроектированы потолки высотой до 3,15 метров, кухни-гостиные и ниши под гардеробные. Фасады первой линии обращены в сторону Невы, поэтому квартиры имеют видовые характеристики. Квартиры передаются покупателям без отделки.
Жилой комплекс расположен в Невском районе на Октябрьской набережной. Проект включает в себя четыре детских сада на 720 мест, две школы на 3300 мест и детский образовательный центр на 200 мест. На первых этажах корпусов предусмотрены коммерческие помещения. Придомовая территория благоустроена пешеходным бульваром, скверами, зелеными зонами и ландшафтным дизайном. Во дворе установлены детские площадки, спортивные комплексы, а также подземные и наземные многоуровневые паркинги на 4000 мест. Проектом предусмотрен собственный выход на благоустроенную набережную.
В районе расположены парки и скверы, работают магазины, отделения почты и банков, ТРК «Лондон Молл». В 10 минутах транспортом находится метро «Улица Дыбенко» и выезд на КАД.
О квартире
Общая площадь
43.53 м²
Жилая площадь
14.94 м²
Площадь кухни
19.6 м²
Площадь комнат
14.94 м²
Высота потолков
2.82 м
Этаж
10
Окна выходят
На улицу
О доме
Год постройки
2027
Этажность
18
Материал постройки
Кирпично-монолитный
Материал перекрытий
Монолитные
Отопление
Центральное
Парковка
Многоуровневая
Расположение
Россия, Санкт-Петербург, Невский район, муниципальный округ № 54
Елизаровская
16 мин.
Ломоносовская
27 мин.
Улица Дыбенко
29 мин.
Проспект Большевиков
4 мин.
Пролетарская
5 мин.
Ладожская
6 мин.
Новочеркасская
6 мин.
Бухарестская
7 мин.
Ипотечный калькулятор
Заполните 1 анкету — получите предложения от десятков банков на специальных условиях
Программа ипотеки
Стоимость жилья, ₽
Первый взнос, ₽
Срок кредита
от 5.75%
Ставка
от 88 176 ₽
Платеж в месяц
Расчёт носит информационный характер и не является публичной офертой
Похожие объекты






2-комн. квартира, 39 м², 11/22 эт.
Улица Дыбенко
9 мин.






1-комн. квартира, 38,8 м², 17/22 эт.
Улица Дыбенко
9 мин.






1-комн. квартира, 37,4 м², 13/22 эт.
Улица Дыбенко
9 мин.






2-комн. квартира, 38,5 м², 18/22 эт.
Улица Дыбенко
9 мин.
Консультант по новостройкам
14 016 066 ₽
321 987 ₽/м²







