Продается 4-комн. квартира, 91.47 м²
Россия, Санкт-Петербург, Невский район, муниципальный округ № 54
Елизаровская
16 мин.
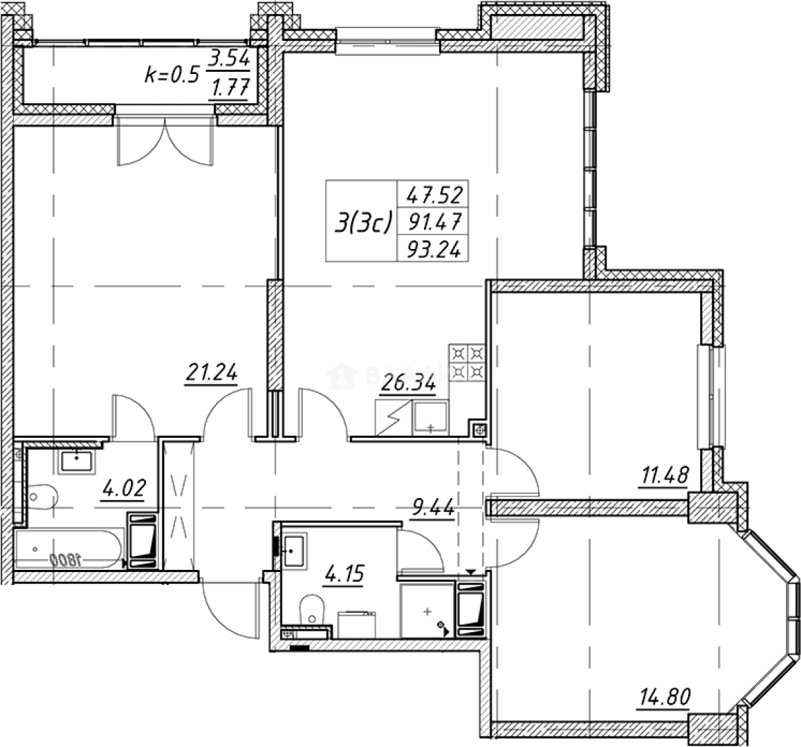
91.47 м²
Общая площадь
47.52 м²
Жилая площадь
26.34 м²
Площадь кухни
11 из 18
Этаж
Описание
Планировки различаются в каждом корпусе, они представлены как классическими так и европланировками. В некоторых квартирах спроектированы потолки высотой до 3,15 метров, кухни-гостиные и ниши под гардеробные. Фасады первой линии обращены в сторону Невы, поэтому квартиры имеют видовые характеристики. Квартиры передаются покупателям без отделки.
Жилой комплекс расположен в Невском районе на Октябрьской набережной. Проект включает в себя четыре детских сада на 720 мест, две школы на 3300 мест и детский образовательный центр на 200 мест. На первых этажах корпусов предусмотрены коммерческие помещения. Придомовая территория благоустроена пешеходным бульваром, скверами, зелеными зонами и ландшафтным дизайном. Во дворе установлены детские площадки, спортивные комплексы, а также подземные и наземные многоуровневые паркинги на 4000 мест. Проектом предусмотрен собственный выход на благоустроенную набережную.
В районе расположены парки и скверы, работают магазины, отделения почты и банков, ТРК «Лондон Молл». В 10 минутах транспортом находится метро «Улица Дыбенко» и выезд на КАД.
О квартире
Общая площадь
91.47 м²
Жилая площадь
47.52 м²
Площадь кухни
26.34 м²
Площадь комнат
21.24+11.48+14.8 м²
Высота потолков
2.82 м
Этаж
11
Окна выходят
На улицу
О доме
Год постройки
2027
Этажность
18
Материал постройки
Кирпично-монолитный
Материал перекрытий
Монолитные
Отопление
Центральное
Парковка
Многоуровневая
Расположение
Россия, Санкт-Петербург, Невский район, муниципальный округ № 54
Елизаровская
16 мин.
Ломоносовская
27 мин.
Улица Дыбенко
29 мин.
Проспект Большевиков
4 мин.
Пролетарская
5 мин.
Ладожская
6 мин.
Новочеркасская
6 мин.
Бухарестская
7 мин.
Ипотечный калькулятор
Заполните 1 анкету — получите предложения от десятков банков на специальных условиях
Программа ипотеки
Стоимость жилья, ₽
Первый взнос, ₽
Срок кредита
от 5.75%
Ставка
от 194 847 ₽
Платеж в месяц
Расчёт носит информационный характер и не является публичной офертой
Похожие объекты






4-комн. квартира, 96,4 м², 4/18 эт.
Елизаровская
16 мин.


4-комн. квартира, 91,4 м², 14/18 эт.
Елизаровская
16 мин.






4-комн. квартира, 91,5 м², 17/18 эт.
Елизаровская
16 мин.







4-комн. квартира, 86,1 м², 15/23 эт.
Елизаровская
17 мин.
Консультант по новостройкам
30 971 997 ₽
338 603 ₽/м²



