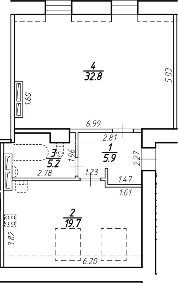
Продается 1-комн. квартира, 63.6 м²
Россия, Санкт-Петербург, Кронштадт, улица Аммермана, 46
63.6 м²
Общая площадь
32.8 м²
Жилая площадь
19.7 м²
Площадь кухни
5 из 5
Этаж
Описание
В проекте «Крона» предложено 35 видов планировок. Сдаются они с увеличенными окнами и высотой потолков от 3,2 метров, на последнем этаже предусмотрены мансардные окна. К каждой квартире подведена телевизионная антенна и предусмотрена возможность установки видеонаблюдения.
Территория комплекса находится под видеонаблюдением, установлены домофоны. Во дворе предусмотрены места для отдыха и установлена современная детская площадка.
Проект «Крона» находится в Кронштадтском районе. В пешей доступности расположены магазины, музеи, парки, стадион, кафе, рестораны, медицинские учреждения, банкоматы, 2 школы, лицей и детский сад. Поблизости находятся Якорная площадь и Морской Никольский собор. До метро «Беговая» можно добраться за 40 минут транспортом.
О квартире
Общая площадь
63.6 м²
Жилая площадь
32.8 м²
Площадь кухни
19.7 м²
Площадь комнат
32.8 м²
Подъезд
2
Этаж
5
Окна выходят
На улицу
О доме
Год постройки
2022
Этажность
5
Материал постройки
Кирпичный
Материал перекрытий
Монолитные
Отопление
Центральное
Парковка
Наземная
Расположение
Россия, Санкт-Петербург, Кронштадт, улица Аммермана, 46
Ипотечный калькулятор
Заполните 1 анкету — получите предложения от десятков банков на специальных условиях
Программа ипотеки
Стоимость жилья, ₽
Первый взнос, ₽
Срок кредита
от 5.75%
Ставка
от 62 018 ₽
Платеж в месяц
Расчёт носит информационный характер и не является публичной офертой
Похожие объекты
Консультант по новостройкам
9 858 000 ₽
155 000 ₽/м²














