Продается 4-комн. квартира, 85.18 м²
Россия, Санкт-Петербург, улица Маршала Захарова, 8
Проспект Ветеранов
9 мин.
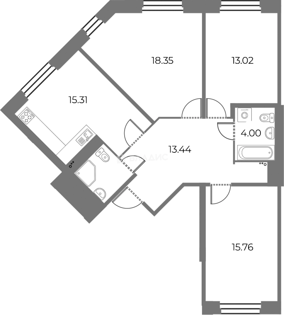
85.18 м²
Общая площадь
47.13 м²
Жилая площадь
15.31 м²
Площадь кухни
2 из 20
Этаж
Описание
В проекте «Огни залива» предложено множество планировочных решений: в наличии квартиры, как классического типа, так и европланировки. На площадке расположено от 2 до 5 квартир. Сдаются они без отделки и с чистовой отделкой, высота потолков составляет 2,74 метра. На верхних этажах запроектированы 2-х этажные квартиры с террасами. Из окон квартир открывается прекрасный вид на акваторию Дудергофского и Матисова каналов.
На территории жилого комплекса «Огни залива» запроектированы 5 детских садов, 2 школы, детская поликлиника, подземные паркинги, места отдыха, магазины и кафе, велодорожка, детские и спортивные площадки. За чистоту и порядок отвечает собственная управляющая компания.
Жилой комплекс расположен в Красносельском районе. В пешей доступности работают школы, детские сады, медицинские центры, яхт-клуб и ТЦ «Жемчужная Плаза». В районе находятся пять парков: Южно-Приморский, «Новознаменка», «Сосновая Поляна», Полежаевский и «Александрино». Выезды на КАД и ЗСД расположены в 10 минутах транспортом, метро «Ленинский проспект» и «Проспект Ветеранов» — в 15 минутах.
О квартире
Общая площадь
85.18 м²
Жилая площадь
47.13 м²
Площадь кухни
15.31 м²
Площадь комнат
18.35+13.02+15.76 м²
Высота потолков
2.74 м
Подъезд
12
Этаж
2
Окна выходят
На улицу
О доме
Год постройки
2023
Этажность
20
Материал постройки
Монолитный
Материал перекрытий
Монолитные
Отопление
Центральное
Пассажирских лифтов
1
Грузовых лифтов
1
Парковка
Наземная
Расположение
Россия, Санкт-Петербург, улица Маршала Захарова, 8
Проспект Ветеранов
9 мин.
Автово
9 мин.
Кировский завод
10 мин.
Ленинский проспект
10 мин.
Нарвская
12 мин.
Электросила
14 мин.
Парк Победы
14 мин.
Московская
15 мин.
Ипотечный калькулятор
Заполните 1 анкету — получите предложения от десятков банков на специальных условиях
Программа ипотеки
Стоимость жилья, ₽
Первый взнос, ₽
Срок кредита
от 5.75%
Ставка
от 135 258 ₽
Платеж в месяц
Расчёт носит информационный характер и не является публичной офертой
Похожие объекты



3-комн. квартира, 74,8 м², 7/9 эт.
Проспект Ветеранов
15 мин.



3-комн. квартира, 74,8 м², 5/9 эт.
Проспект Ветеранов
15 мин.




3-комн. квартира, 76 м², 8/9 эт.
Проспект Ветеранов
15 мин.


3-комн. квартира, 76 м², 7/9 эт.
Проспект Ветеранов
15 мин.
Консультант по новостройкам
21 500 000 ₽
252 407 ₽/м²
















