Продается 1-комн. квартира, 41.6 м²
Россия, Санкт-Петербург, Малая Зеленина улица, 4
Чкаловская
7 мин.
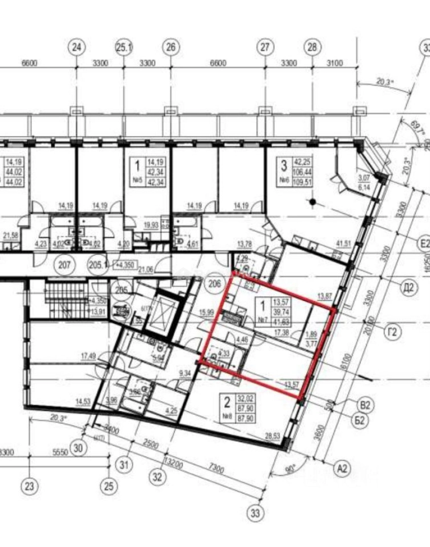
41.6 м²
Общая площадь
13.57 м²
Жилая площадь
17.4 м²
Площадь кухни
2 из 10
Этаж
Описание
Дом всего на 88 квартир.
в окружении респектабельных жилых зданий в пешей доступности от набережной Адмирала Лазарева и Крестовского острова.
Просторная квартира с балконом и двумя окнами, которые выходят на Корпусную улицу.
Стены кирично-монолитные. Хорошая звукоизоляция.
Отличная планировка и высокие потолки 3 м
Балкон в кухне и два окна в спальне. Деревянные окна!
Без ремонта поэтому возможен любой дизайн.
Современное инженерное оснащение дома обеспечивает максимальный комфорт и удобство проживания.
Умная система контроля и управления бесконтактным доступом распознает на подъезде к дому и открывает ворота паркинга или двери холла.
Бесшумные лифты с уровня подземного паркинга.
ДОМ СДАН!
О квартире
Общая площадь
41.6 м²
Жилая площадь
13.57 м²
Площадь кухни
17.4 м²
Площадь комнат
13,57 м²
Высота потолков
3 м
Этаж
2
Расположение квартиры
не угловая
Окна выходят
На улицу
Совмещенных санузлов
1
Ремонт
Без отделки
О доме
Год постройки
2024
Этажность
10
Материал постройки
Кирпично-монолитный
Материал перекрытий
Ж/б плиты
Отопление
Центральное
Огороженная территория
Да
Расположение
Россия, Санкт-Петербург, Малая Зеленина улица, 4
Чкаловская
7 мин.
Спортивная
15 мин.
Крестовский остров
20 мин.
Петроградская
21 мин.
Горьковская
27 мин.
Василеостровская
27 мин.
Чёрная речка
4 мин.
Приморская
4 мин.
Ипотечный калькулятор
Заполните 1 анкету — получите предложения от десятков банков на специальных условиях
Программа ипотеки
Стоимость жилья, ₽
Первый взнос, ₽
Срок кредита
от 5.75%
Ставка
от 157 277 ₽
Платеж в месяц
Расчёт носит информационный характер и не является публичной офертой
Предложите свою цену
25 000 000 ₽
600 962 ₽/м²




























































