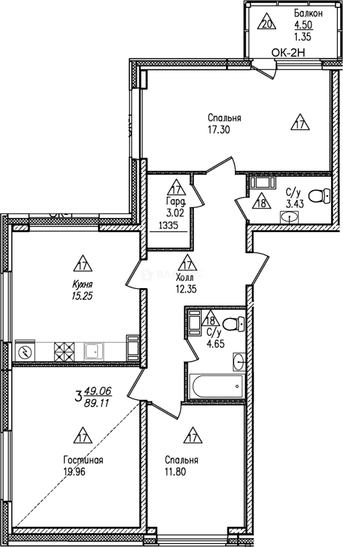
Продается 3-комн. квартира, 87.76 м²
Россия, Санкт-Петербург, Калининский район, Герасимовская улица, 5к2
Площадь Мужества
4 мин.
87.76 м²
Общая площадь
49.06 м²
Жилая площадь
15.25 м²
Площадь кухни
4 из 9
Этаж
Описание
В проекте предлагаются студии и квартиры с 1–3 комнатами и потолками высотой 2,7 метра. Все помещения идут с отделкой формата White Box: выполнена стяжка пола, стены оштукатурены и зашпаклеваны, смонтированы межкомнатные перегородки и проведена скрытая электропроводка. Установлены радиаторы отопления, счетчики воды и электричества, стандартные металлопластиковые окна с двухкамерными стеклопакетами и системой микропроветривания. Все квартиры имеют застекленные балконы.
На придомовой территории комплекса выполнено озеленение, обустроено функциональное зонирование пространства для отдыха и активного досуга. Предусмотрены дорожки для прогулок, детская и спортивная площадки. Для автомобилей оборудован подземный паркинг.
Дом расположен в Калининском районе, в 35 минутах транспортом от центра Санкт-Петербурга. В 5–15 минутах пешком есть все необходимое для комфортной жизни — школы, детские сады, медицинские центры, вузы, супермаркеты, музеи, кафе и рестораны, вблизи парка имени Академика Сахарова и Пионерского парка. До станции метро Лесная — 10 минут транспортом, а до выезда на КАД — 15 минут.
О квартире
Общая площадь
87.76 м²
Жилая площадь
49.06 м²
Площадь кухни
15.25 м²
Площадь комнат
19.96+17.3+11.8 м²
Высота потолков
2.7 м
Этаж
4
Окна выходят
На улицу
О доме
Год постройки
2026
Этажность
9
Количество подъездов
3
Материал постройки
Монолитный
Парковка
Подземная
Расположение
Россия, Санкт-Петербург, Калининский район, Герасимовская улица, 5к2
Площадь Мужества
4 мин.
Лесная
5 мин.
Выборгская
5 мин.
Академическая
5 мин.
Политехническая
5 мин.
Площадь Ленина
6 мин.
Чернышевская
7 мин.
Петроградская
8 мин.
Ипотечный калькулятор
Заполните 1 анкету — получите предложения от десятков банков на специальных условиях
Программа ипотеки
Стоимость жилья, ₽
Первый взнос, ₽
Срок кредита
от 5.75%
Ставка
от 145 407 ₽
Платеж в месяц
Расчёт носит информационный характер и не является публичной офертой
Похожие объекты







4-комн. квартира, 77,6 м², 5/18 эт.
Выборгская
29 мин.






4-комн. квартира, 77,6 м², 9/18 эт.
Выборгская
29 мин.






4-комн. квартира, 77,6 м², 7/18 эт.
Выборгская
29 мин.







4-комн. квартира, 77,6 м², 4/18 эт.
Выборгская
29 мин.
Консультант по новостройкам
23 113 200 ₽
263 369 ₽/м²







