Продается 5-комн. квартира, 89.39 м²
Россия, Санкт-Петербург, Приморский район, муниципальный округ Коломяги, ЖК Окла
Проспект Просвещения
4 мин.
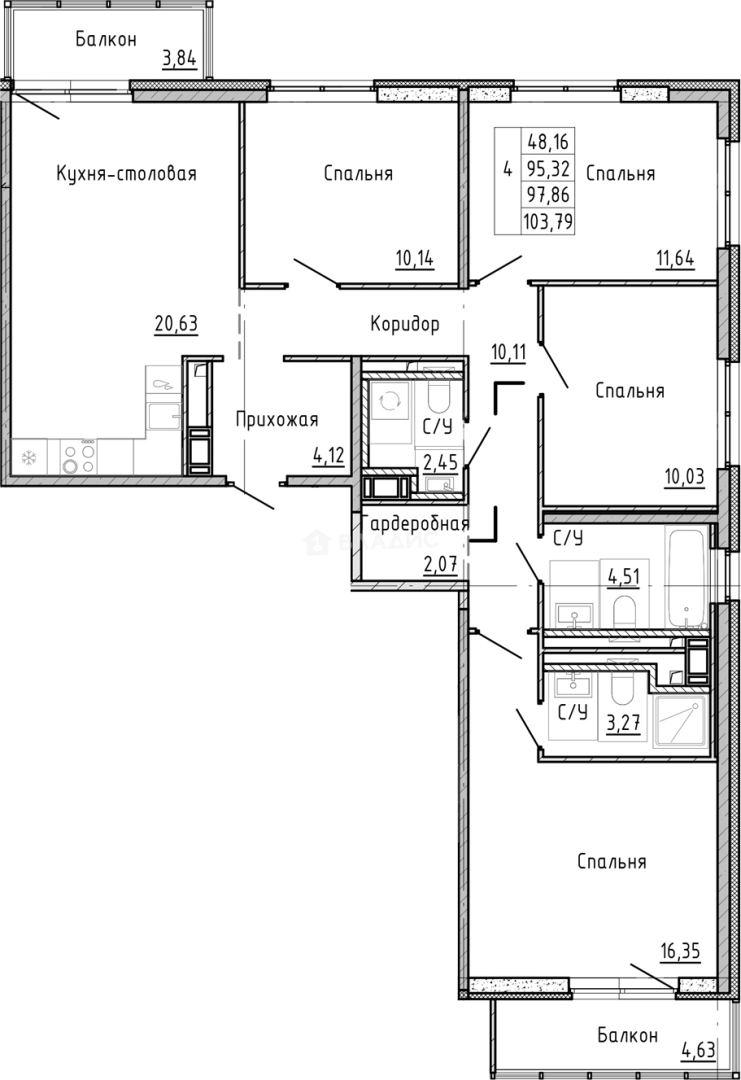
89.39 м²
Общая площадь
48.16 м²
Жилая площадь
20.63 м²
Площадь кухни
4 из 9
Этаж
Описание
В проекте предложено множество планировочных решений: в наличии квартиры, как классического типа, так и европланировки. В них предусмотрены нестандартные широкие балконы с увеличенной площадью и панорамным остеклением.
В состав комплекса входит 3 детских сада на 140 мест и школа на 825 мест. Территория комплекса благоустроена: выполнено авторское озеленение, проложены лесные дорожки, предусмотрены площадки для отдыха и спорта. На первых этажах предусмотрены коммерческие помещения. Для автовладельцев спроектировано 4 отдельностоящих паркинга и 6 пристроенных.
Жилой комплекс находится в Приморском районе Санкт-Петербурга Комплекс с 3 сторон окружают лесные массивы. Рядом с ЖК расположены Суздальские озера и Шуваловский парк, а в 10 минутах езды — Юнтоловский заповедник. Метро «Проспект Просвещения» находится в 15 минутах на машине.
О квартире
Общая площадь
89.39 м²
Жилая площадь
48.16 м²
Площадь кухни
20.63 м²
Площадь комнат
10.14+11.64+10.03+16.35 м²
Высота потолков
2.7 м
Этаж
4
Окна выходят
На улицу
О доме
Год постройки
2027
Этажность
9
Материал постройки
Монолитный
Материал перекрытий
Монолитные
Отопление
Центральное
Парковка
Многоуровневая
Расположение
Россия, Санкт-Петербург, Приморский район, муниципальный округ Коломяги, ЖК Окла
Проспект Просвещения
4 мин.
Парнас
5 мин.
Озерки
5 мин.
Удельная
8 мин.
Комендантский проспект
9 мин.
Пионерская
10 мин.
Политехническая
12 мин.
Старая Деревня
12 мин.
Ипотечный калькулятор
Заполните 1 анкету — получите предложения от десятков банков на специальных условиях
Программа ипотеки
Стоимость жилья, ₽
Первый взнос, ₽
Срок кредита
от 5.75%
Ставка
от 156 128 ₽
Платеж в месяц
Расчёт носит информационный характер и не является публичной офертой
Похожие объекты








4-комн. квартира, 91,8 м², 2/5 эт.
Проспект Просвещения
30 мин.










4-комн. квартира, 95,6 м², 11/23 эт.
Парнас
10 мин.




4-комн. квартира, 84,2 м², 4/25 эт.










4-комн. квартира, 93,6 м², 2/23 эт.
Парнас
10 мин.
Консультант по новостройкам
24 817 296 ₽
277 630 ₽/м²




















