Продается 3-комн. квартира, 57.99 м²
Россия, Санкт-Петербург, Приморский район, муниципальный округ Коломяги, ЖК Окла
Проспект Просвещения
4 мин.
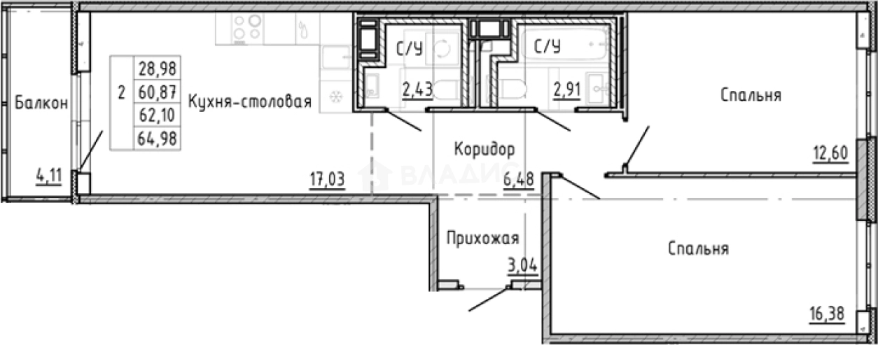
57.99 м²
Общая площадь
28.98 м²
Жилая площадь
17.03 м²
Площадь кухни
5 из 9
Этаж
Описание
В проекте предложено множество планировочных решений: в наличии квартиры, как классического типа, так и европланировки. В них предусмотрены нестандартные широкие балконы с увеличенной площадью и панорамным остеклением.
В состав комплекса входит 3 детских сада на 140 мест и школа на 825 мест. Территория комплекса благоустроена: выполнено авторское озеленение, проложены лесные дорожки, предусмотрены площадки для отдыха и спорта. На первых этажах предусмотрены коммерческие помещения. Для автовладельцев спроектировано 4 отдельностоящих паркинга и 6 пристроенных.
Жилой комплекс находится в Приморском районе Санкт-Петербурга Комплекс с 3 сторон окружают лесные массивы. Рядом с ЖК расположены Суздальские озера и Шуваловский парк, а в 10 минутах езды — Юнтоловский заповедник. Метро «Проспект Просвещения» находится в 15 минутах на машине.
О квартире
Общая площадь
57.99 м²
Жилая площадь
28.98 м²
Площадь кухни
17.03 м²
Площадь комнат
12.6+16.38 м²
Высота потолков
2.7 м
Этаж
5
Окна выходят
На улицу
О доме
Год постройки
2027
Этажность
9
Материал постройки
Монолитный
Материал перекрытий
Монолитные
Отопление
Центральное
Парковка
Многоуровневая
Расположение
Россия, Санкт-Петербург, Приморский район, муниципальный округ Коломяги, ЖК Окла
Проспект Просвещения
4 мин.
Парнас
5 мин.
Озерки
5 мин.
Удельная
8 мин.
Комендантский проспект
9 мин.
Пионерская
10 мин.
Политехническая
12 мин.
Старая Деревня
12 мин.
Ипотечный калькулятор
Заполните 1 анкету — получите предложения от десятков банков на специальных условиях
Программа ипотеки
Стоимость жилья, ₽
Первый взнос, ₽
Срок кредита
от 5.75%
Ставка
от 97 591 ₽
Платеж в месяц
Расчёт носит информационный характер и не является публичной офертой
Похожие объекты







2-комн. квартира, 60,1 м², 23/23 эт.
Парнас
15 мин.







2-комн. квартира, 59,9 м², 22/23 эт.
Парнас
15 мин.







3-комн. квартира, 63,1 м², 5/23 эт.
Парнас
15 мин.






3-комн. квартира, 64,4 м², 4/17 эт.
Комендантский проспект
6 мин.
Консультант по новостройкам
15 512 580 ₽
267 505 ₽/м²






