Продается 2-комн. квартира, 47.8 м²
Россия, Санкт-Петербург, Приморский район, муниципальный округ Коломяги, ЖК Окла, 1
Проспект Просвещения
4 мин.
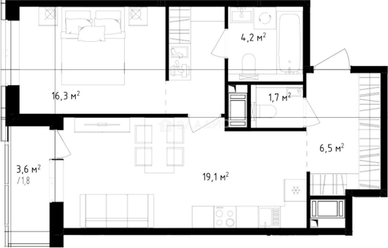
47.8 м²
Общая площадь
16.3 м²
Жилая площадь
19.1 м²
Площадь кухни
3 из 9
Этаж
Описание
В проекте предложено множество планировочных решений: в наличии квартиры, как классического типа, так и европланировки. В них предусмотрены нестандартные широкие балконы с увеличенной площадью и панорамным остеклением.
В состав комплекса входит 3 детских сада на 140 мест и школа на 825 мест. Территория комплекса благоустроена: выполнено авторское озеленение, проложены лесные дорожки, предусмотрены площадки для отдыха и спорта. На первых этажах предусмотрены коммерческие помещения. Для автовладельцев спроектировано 4 отдельностоящих паркинга и 6 пристроенных.
Жилой комплекс находится в Приморском районе Санкт-Петербурга Комплекс с 3 сторон окружают лесные массивы. Рядом с ЖК расположены Суздальские озера и Шуваловский парк, а в 10 минутах езды — Юнтоловский заповедник. Метро «Проспект Просвещения» находится в 15 минутах на машине.
О квартире
Общая площадь
47.8 м²
Жилая площадь
16.3 м²
Площадь кухни
19.1 м²
Площадь комнат
16.3 м²
Высота потолков
2.75 м
Этаж
3
Окна выходят
На улицу
О доме
Год постройки
2026
Этажность
9
Материал постройки
Монолитный
Материал перекрытий
Монолитные
Отопление
Центральное
Парковка
Многоуровневая
Расположение
Россия, Санкт-Петербург, Приморский район, муниципальный округ Коломяги, ЖК Окла, 1
Проспект Просвещения
4 мин.
Озерки
5 мин.
Парнас
5 мин.
Удельная
7 мин.
Комендантский проспект
8 мин.
Пионерская
9 мин.
Политехническая
11 мин.
Старая Деревня
11 мин.
Ипотечный калькулятор
Заполните 1 анкету — получите предложения от десятков банков на специальных условиях
Программа ипотеки
Стоимость жилья, ₽
Первый взнос, ₽
Срок кредита
от 5.75%
Ставка
от 82 761 ₽
Платеж в месяц
Расчёт носит информационный характер и не является публичной офертой
Похожие объекты








1-комн. квартира, 42,0 м², 4/5 эт.
Проспект Просвещения
30 мин.








1-комн. квартира, 42,1 м², 3/5 эт.
Проспект Просвещения
30 мин.







1-комн. квартира, 41,2 м², 3/5 эт.
Проспект Просвещения
30 мин.







2-комн. квартира, 42,9 м², 20/23 эт.
Парнас
9 мин.
Консультант по новостройкам
13 155 305 ₽
275 216 ₽/м²



















