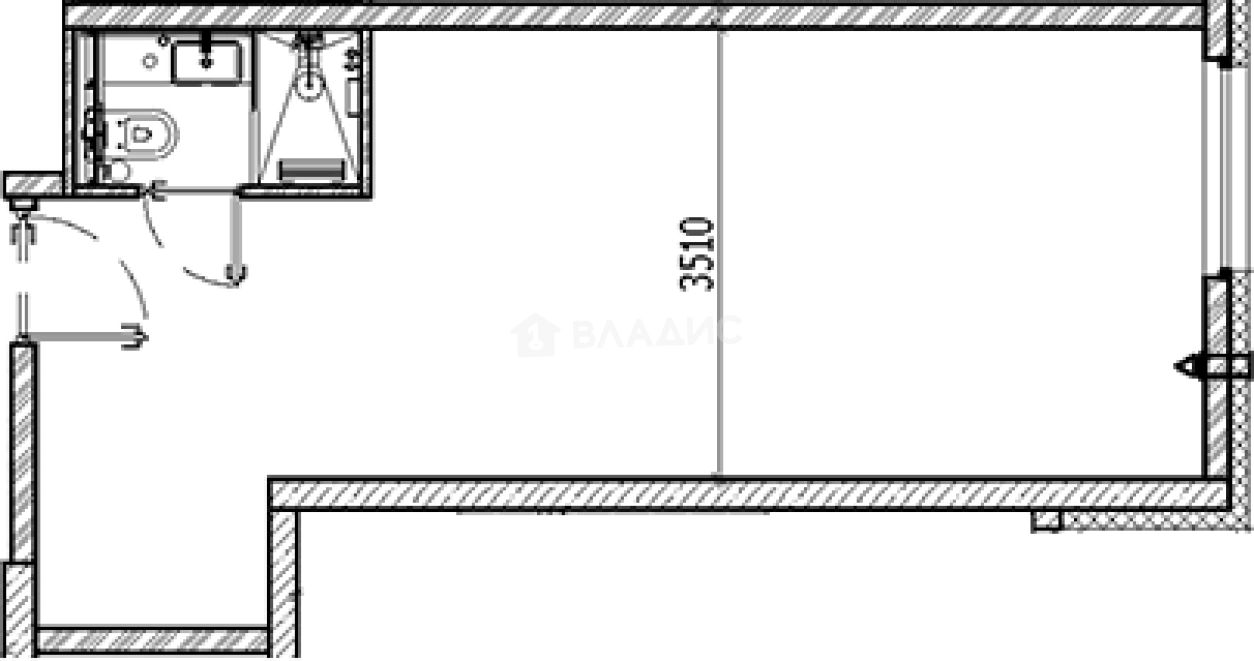
Продается Студия, 33.1 м²
Россия, Санкт-Петербург, улица Орджоникидзе, 44А
Московская
14 мин.
33.1 м²
Общая площадь
33.1 м²
Жилая площадь
14 из 26
Этаж
Описание
Все апартаменты сдаются с чистовой отделкой и мебелью.
В состав комплекса входят конференц-центр, рестораны, спортивный зал, коворкинг, химчистка, читальные залы, кинокомнаты, игровые пространства, совместные кухни, кафе, спортзал, террасы и лаунж пространства. Также работают эвент-менеджеры, которые организуют до 5 мероприятий в день: йога, клубы по интересам, философский вечер, вечерняя пробежка, обеденный мозговой штурм, 15 минут знакомств.
Проект расположен в Московском районе с развитой инфраструктурой и сетью общественного транспорта. В пешей доступности есть школы, детские сады, продуктовые магазины, кафе и рестораны, отделения почты и банков, а также медицинские центры и Пулковский парк. Метро «Московская» расположено в 20 минутах пешком. Развязка КАД и ЗСД находится в 10 минутах транспортом.
О квартире
Общая площадь
33.1 м²
Жилая площадь
33.1 м²
Площадь комнат
33.1 м²
Высота потолков
2.5 м
Этаж
14
Окна выходят
На улицу
О доме
Год постройки
2023
Этажность
26
Материал постройки
Монолитный
Материал перекрытий
Монолитные
Отопление
Центральное
Парковка
Наземная
Расположение
Россия, Санкт-Петербург, улица Орджоникидзе, 44А
Московская
14 мин.
Звёздная
17 мин.
Купчино
4 мин.
Парк Победы
4 мин.
Проспект Славы
5 мин.
Международная
5 мин.
Дунайская
6 мин.
Электросила
6 мин.
Ипотечный калькулятор
Заполните 1 анкету — получите предложения от десятков банков на специальных условиях
Программа ипотеки
Стоимость жилья, ₽
Первый взнос, ₽
Срок кредита
от 5.75%
Ставка
от 74 678 ₽
Платеж в месяц
Расчёт носит информационный характер и не является публичной офертой
Похожие объекты





Студия, 33,4 м², 24/26 эт.
Московская
14 мин.





Студия, 33,4 м², 22/26 эт.
Московская
14 мин.





Студия, 33,4 м², 4/26 эт.
Московская
14 мин.
Консультант по новостройкам
11 870 423 ₽
358 624 ₽/м²







