Продается Студия, 35.7 м²
Россия, Санкт-Петербург, Херсонская улица, 43/12
Площадь Восстания
17 мин.
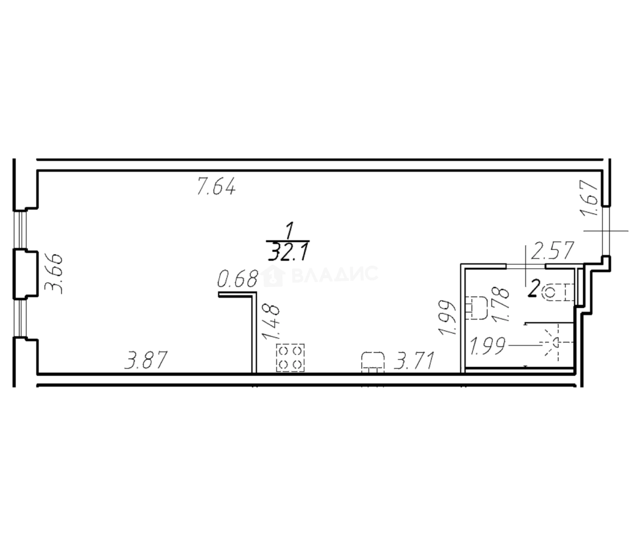
35.7 м²
Общая площадь
32.1 м²
Жилая площадь
2 из 8
Этаж
Описание
В проекте представлены различные форматы жилья — от компактных студий до просторных двухуровневых пентхаусов с террасами и живописными видами на Неву. Все апартаменты идут с чистовой отделкой с применением антивандальных материалов. В помещениях установлены панорамные окна, а высота потолков составляет 2,6 метра.
На первом этаже комплекса размещена зона ресепшн, гастромаркет, рестораны, бары и коммерческие помещения. Также предусмотрены фитнес-клуб и коворкинг с конференц-залом и трансформируемым кинотеатром. Во внутреннем дворе спроектированы 2 благоустроенных атриума. Для владельцев авто оборудован подземный паркинг. Безопасность обеспечивается круглосуточной охраной и видеонаблюдением.
Проект расположен в историческом центре Санкт-Петербурга, на пересечении улиц Александра Невского и Херсонской. В пределах 5–15 минут пешком доступны школы, детские сады, поликлиники, торговые галереи, парки и культурные объекты — Александро-Невская лавра и Феодоровский собор. До станции метро Площадь Александра Невского можно добраться за 5 минут пешком.
О квартире
Общая площадь
35.7 м²
Жилая площадь
32.1 м²
Площадь комнат
32.1 м²
Высота потолков
2.75 м
Этаж
2
Окна выходят
На улицу
О доме
Год постройки
2019
Этажность
8
Материал постройки
Монолитный
Материал перекрытий
Монолитные
Отопление
Центральное
Парковка
Подземная
Расположение
Россия, Санкт-Петербург, Херсонская улица, 43/12
Площадь Восстания
17 мин.
Новочеркасская
19 мин.
Маяковская
21 мин.
Лиговский проспект
22 мин.
Владимирская
25 мин.
Достоевская
26 мин.
Ипотечный калькулятор
Заполните 1 анкету — получите предложения от десятков банков на специальных условиях
Программа ипотеки
Стоимость жилья, ₽
Первый взнос, ₽
Срок кредита
от 5.75%
Ставка
от 83 099 ₽
Платеж в месяц
Расчёт носит информационный характер и не является публичной офертой
Похожие объекты








Свободная планировка, 34,9 м², 3/4 эт.
Лиговский проспект
5 мин.








Свободная планировка, 35,4 м², 2/4 эт.
Лиговский проспект
5 мин.








Свободная планировка, 35,4 м², 4/4 эт.
Лиговский проспект
5 мин.








Свободная планировка, 35,7 м², 3/4 эт.
Лиговский проспект
5 мин.
Консультант по новостройкам
13 209 000 ₽
370 000 ₽/м²







