Продается 3-комн. квартира, 83.32 м²
Россия, Санкт-Петербург, Малоохтинский проспект, 8Б
Новочеркасская
12 мин.
83.32 м²
Общая площадь
28.43 м²
Жилая площадь
33.29 м²
Площадь кухни
5 из 9
Этаж
Описание
Покупателям в ЖК «AKZENT» предложено множество планировочных решений евроформата. В некоторых квартирах на 2 и 9 этажах предусмотрены открытые террасы площадью от 6 кв.м. Высота потолков в помещениях от 3,03 до 3,33 метра.
Для автовладельцев предусмотрен подземный паркинг на 43 места, а для гостей — стоянка на 6 мест. На территории комплекса ведется круглосуточное видеонаблюдение.
Жилой комплекс расположен в Красногвардейском районе, где находятся магазины и торговые комплексы, досуговые центры, спортивные и музыкальные школы, кафе, рестораны и театры. В 300 метрах от дома находится Весенний сквер, а в 600 метрах — Малоохтинский парк. До Невского проспекта и Смольного собора можно добраться за 30 минут пешком. Метро «Новочеркасская» находится в 10 минутах пешком.
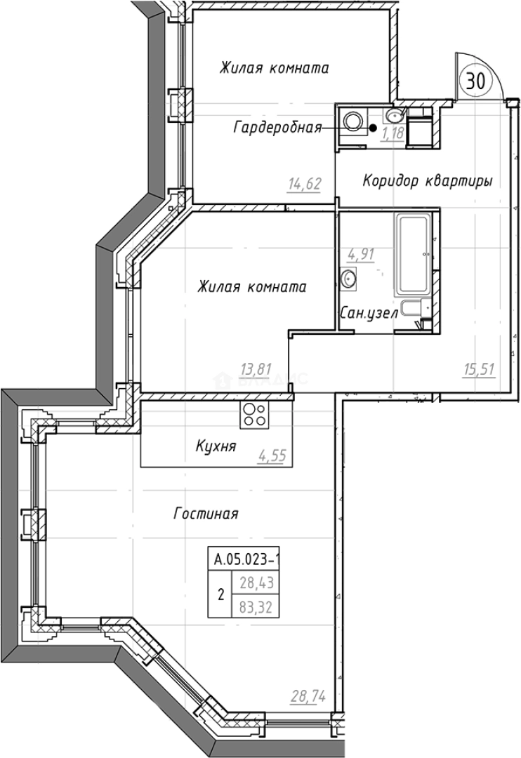
О квартире
Общая площадь
83.32 м²
Жилая площадь
28.43 м²
Площадь кухни
33.29 м²
Площадь комнат
13.81+14.62 м²
Этаж
5
Окна выходят
На улицу
О доме
Год постройки
2024
Этажность
9
Материал постройки
Монолитный
Материал перекрытий
Монолитные
Отопление
Центральное
Пассажирских лифтов
1
Грузовых лифтов
1
Парковка
Подземная
Расположение
Россия, Санкт-Петербург, Малоохтинский проспект, 8Б
Новочеркасская
12 мин.
Ладожская
24 мин.
Площадь Восстания
4 мин.
Чернышевская
4 мин.
Маяковская
4 мин.
Лиговский проспект
5 мин.
Ипотечный калькулятор
Заполните 1 анкету — получите предложения от десятков банков на специальных условиях
Программа ипотеки
Стоимость жилья, ₽
Первый взнос, ₽
Срок кредита
от 5.75%
Ставка
от 180 053 ₽
Платеж в месяц
Расчёт носит информационный характер и не является публичной офертой
Похожие объекты







2-комн. квартира, 71,3 м², 2/10 эт.
Лиговский проспект
4 мин.







2-комн. квартира, 78,1 м², 2/10 эт.
Лиговский проспект
4 мин.




3-комн. квартира, 77,6 м², 4/9 эт.
Новочеркасская
5 мин.




3-комн. квартира, 75,7 м², 2/9 эт.
Новочеркасская
6 мин.
Консультант по новостройкам
28 620 420 ₽
343 500 ₽/м²










