Продается Студия, 25.3 м²
Россия, Санкт-Петербург, 17-я линия Васильевского острова, 54к2Е
Василеостровская
12 мин.
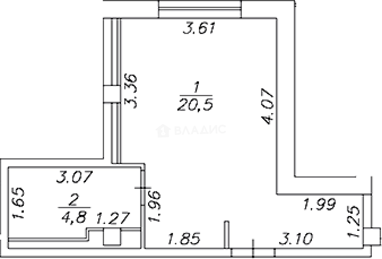
25.3 м²
Общая площадь
20.5 м²
Жилая площадь
5 из 9
Этаж
Описание
В проекте представлено 111 апартаментов с чистовой отделкой с меблировкой, высотой потолков от 2.9 до 3.7 метров, стандартными, увеличенными и панорамными окнами. На последнем этаже расположены пентхаусы с собственной террасой и видами на исторический центр города.
На территории комплекса спроектировано офисное пространство с зонами для коворкинга, двухэтажное торгово-офисное пространство с выходом на крышу, концептуальный ресторан смешанной кухни на 1 этаже. Безопасность обеспечивается системой контроля доступа и видеонаблюдением.
Проект расположен на Васильевском острове, окруженном историческими достопримечательностями и современной инфраструктурой. В транспортной доступности расположены музей Эрарта, общественное пространство Севкабель Порт, Василеостровский рынок, Кунсткамера. В 10 минутах на автомобиле расположен выезд на ЗСД, в 20 минутах — Невский проспект. До метро «Василеостровская» можно добраться за 15 минут пешком.
О квартире
Общая площадь
25.3 м²
Жилая площадь
20.5 м²
Площадь комнат
20.5 м²
Высота потолков
3 м
Этаж
5
Окна выходят
На улицу
О доме
Год постройки
2024
Этажность
9
Материал постройки
Газобетонный блок
Материал перекрытий
Монолитные
Отопление
Центральное
Расположение
Россия, Санкт-Петербург, 17-я линия Васильевского острова, 54к2Е
Василеостровская
12 мин.
Горный институт
16 мин.
Приморская
19 мин.
Спортивная
24 мин.
Чкаловская
4 мин.
Крестовский остров
4 мин.
Адмиралтейская
5 мин.
Горьковская
5 мин.
Ипотечный калькулятор
Заполните 1 анкету — получите предложения от десятков банков на специальных условиях
Программа ипотеки
Стоимость жилья, ₽
Первый взнос, ₽
Срок кредита
от 5.75%
Ставка
от 90 724 ₽
Платеж в месяц
Расчёт носит информационный характер и не является публичной офертой
Похожие объекты







Студия, 28,2 м², 4/6 эт.
Петроградская
12 мин.








Студия, 27,5 м², 3/6 эт.
Петроградская
12 мин.









Студия, 28,0 м², 5/6 эт.
Петроградская
12 мин.









Студия, 24,5 м², 1/6 эт.
Петроградская
12 мин.
Консультант по новостройкам
14 421 000 ₽
570 000 ₽/м²














