Продается Студия, 35.1 м²
Россия, Санкт-Петербург, 17-я линия Васильевского острова, 54к2Е
Василеостровская
12 мин.
35.1 м²
Общая площадь
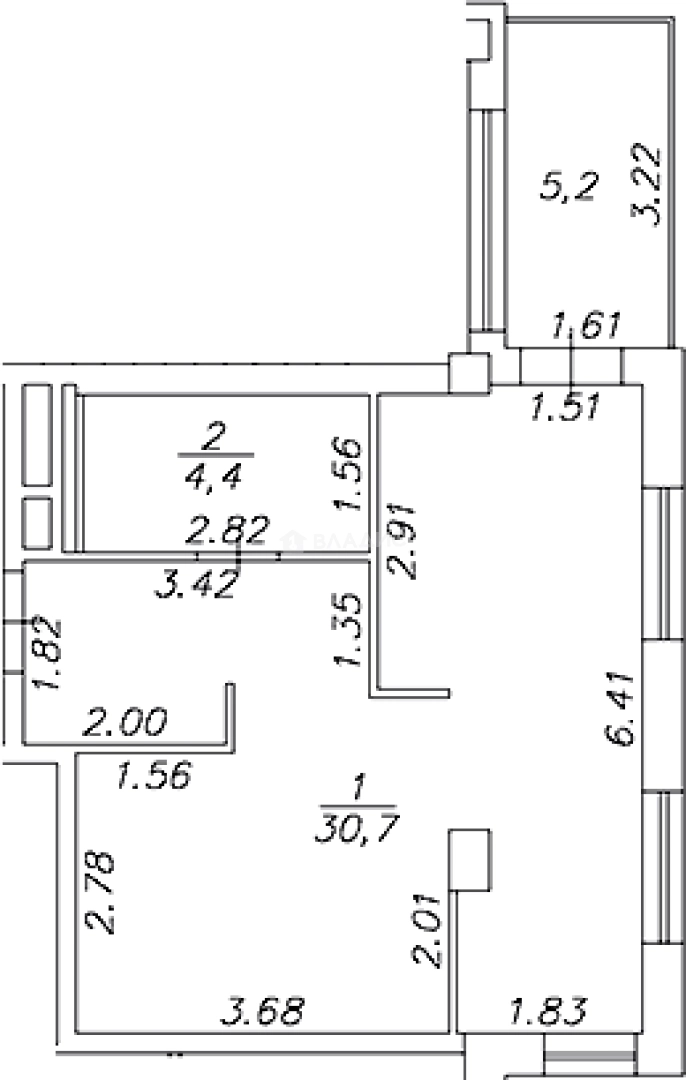
30.7 м²
Жилая площадь
6 из 9
Этаж
Описание
В проекте представлено 111 апартаментов с чистовой отделкой с меблировкой, высотой потолков от 2.9 до 3.7 метров, стандартными, увеличенными и панорамными окнами. На последнем этаже расположены пентхаусы с собственной террасой и видами на исторический центр города.
На территории комплекса спроектировано офисное пространство с зонами для коворкинга, двухэтажное торгово-офисное пространство с выходом на крышу, концептуальный ресторан смешанной кухни на 1 этаже. Безопасность обеспечивается системой контроля доступа и видеонаблюдением.
Проект расположен на Васильевском острове, окруженном историческими достопримечательностями и современной инфраструктурой. В транспортной доступности расположены музей Эрарта, общественное пространство Севкабель Порт, Василеостровский рынок, Кунсткамера. В 10 минутах на автомобиле расположен выезд на ЗСД, в 20 минутах — Невский проспект. До метро «Василеостровская» можно добраться за 15 минут пешком.
О квартире
Общая площадь
35.1 м²
Жилая площадь
30.7 м²
Площадь комнат
30.7 м²
Высота потолков
3 м
Этаж
6
Окна выходят
На улицу
О доме
Год постройки
2024
Этажность
9
Материал постройки
Газобетонный блок
Материал перекрытий
Монолитные
Отопление
Центральное
Расположение
Россия, Санкт-Петербург, 17-я линия Васильевского острова, 54к2Е
Василеостровская
12 мин.
Горный институт
16 мин.
Приморская
19 мин.
Спортивная
24 мин.
Чкаловская
4 мин.
Крестовский остров
4 мин.
Адмиралтейская
5 мин.
Горьковская
5 мин.
Ипотечный калькулятор
Заполните 1 анкету — получите предложения от десятков банков на специальных условиях
Программа ипотеки
Стоимость жилья, ₽
Первый взнос, ₽
Срок кредита
от 5.75%
Ставка
от 141 977 ₽
Платеж в месяц
Расчёт носит информационный характер и не является публичной офертой
Похожие объекты







2-комн. квартира, 35,7 м², 7/12 эт.
Горный институт
12 мин.








1-комн. квартира, 36,2 м², 3/6 эт.
Петроградская
12 мин.









Студия, 30,6 м², 6/6 эт.
Петроградская
12 мин.
Консультант по новостройкам
22 568 000 ₽
642 963 ₽/м²




















