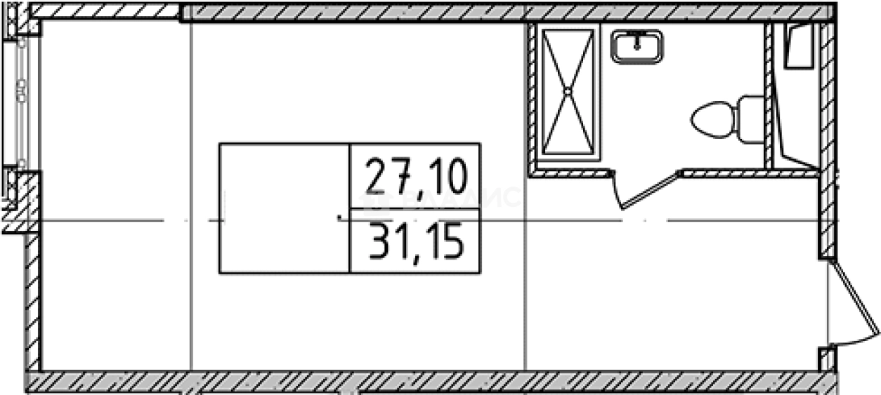
Продается Студия, 31.15 м²
Россия, Санкт-Петербург, проспект Энергетиков, 8к2
Ладожская
10 мин.
31.15 м²
Общая площадь
27.1 м²
Жилая площадь
7 из 14
Этаж
Описание
В проекте предложено 960 апартаментов повышенной комфортности площадью от 24,2 до 60,8 кв. метров. Всего предложено несколько категории номеров: Studio и Superior. Deluxe, Junior Suite и Family Room. Сдаются они с отделкой «под ключ» в единой стилистике. Для передачи апартамента управляющей компании необходимо заключить договор на приобретение пакета «Меблировка и оснащение».
Управлением юнитов занимается собственная управляющая компания «PSK Invest». В их услуги входят: информирование о загрузке и доходности через личный кабинет, прием и размещение гостей, управление системами жизнеобеспечения здания, поиск арендаторов, продвижение апарт-отеля, обеспечение безопасности и комфорта. Для владельцев автомобилей предусмотрена стоянка.
Апарт-отель расположен в историческом районе Матросская слобода на Правобережье Невы. Метро «Ладожская» находится в 10 минутах пешком, а до Невского проспекта можно добраться за 10 минут транспортом.
О квартире
Общая площадь
31.15 м²
Жилая площадь
27.1 м²
Площадь комнат
27.1 м²
Высота потолков
2.7 м
Этаж
7
Окна выходят
На улицу
О доме
Год постройки
2024
Этажность
14
Материал постройки
Монолитный
Материал перекрытий
Монолитные
Отопление
Центральное
Парковка
Подземная
Расположение
Россия, Санкт-Петербург, проспект Энергетиков, 8к2
Ладожская
10 мин.
Новочеркасская
20 мин.
Проспект Большевиков
4 мин.
Чернышевская
6 мин.
Площадь Восстания
6 мин.
Маяковская
7 мин.
Ипотечный калькулятор
Заполните 1 анкету — получите предложения от десятков банков на специальных условиях
Программа ипотеки
Стоимость жилья, ₽
Первый взнос, ₽
Срок кредита
от 5.75%
Ставка
от 44 461 ₽
Платеж в месяц
Расчёт носит информационный характер и не является публичной офертой
Похожие объекты




Студия, 35,0 м², 10/14 эт.
Ладожская
10 мин.





Студия, 27,2 м², 3/14 эт.
Ладожская
10 мин.




Студия, 28,1 м², 7/14 эт.
Ладожская
10 мин.
Консультант по новостройкам
7 067 187 ₽
226 876 ₽/м²








