Продается Студия, 44.85 м²
Россия, Санкт-Петербург, Измайловский бульвар, 1к2
Балтийская
3 мин.
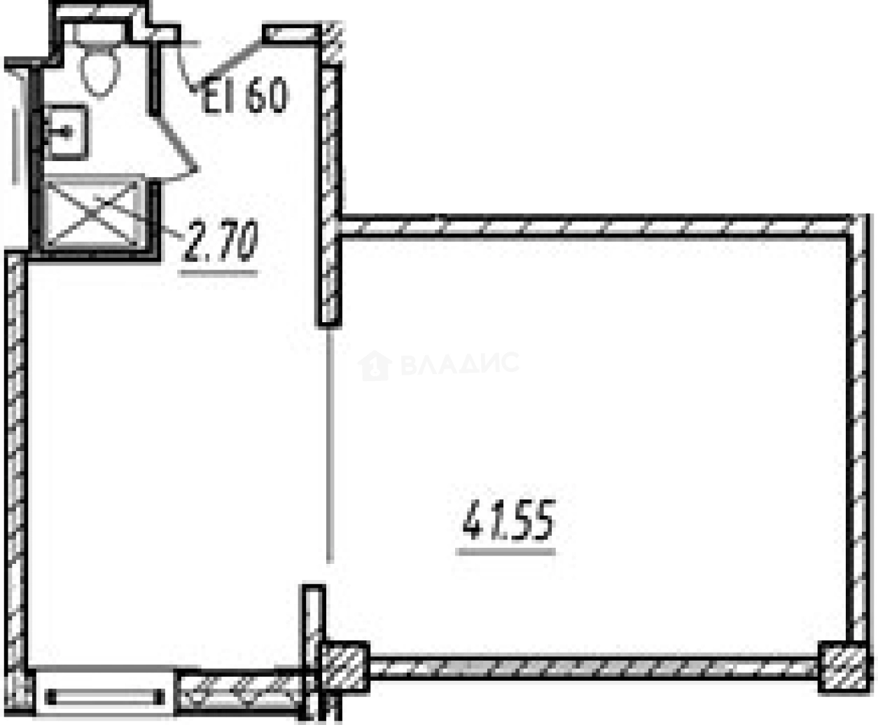
44.85 м²
Общая площадь
42.15 м²
Жилая площадь
9 из 8
Этаж
Описание
В комплексе предложено 3 категории апартаментов: Studio, Standard и Deluxe. Сдаются они с чистовой отделкой и высотой потолков 2,7 метра. Дополнительно доступна меблировка апартаментов, включающая в себя все необходимое для комфортного проживания. Управлением апартаментов занимается собственная управляющая компания Well.
В жилом комплексе спроектированы удобные зоны для отдыха и коворкинга, многофункциональное лобби, ресторан сбалансированного питания, daily-кафе, магазины и офисные помещения, а также уютные, закрытые от проезжей части дворы. Для владельцев автомобилей предусмотрена стоянка.
Проект находятся в Адмиралтейском районе на наб. Обводного канала. В пешей доступности сразу 2 метро: до «Балтийской» — 5 минут пешком, до «Фрунзенской» — 10 минут. Дорога до аэропорта Пулково или Московского вокзала займет 20 минут на автомобиле. Напротив апарт-отеля расположен самый большой фуд-молл России — VOKZAL 1853, включающий в себя кинотеатр, фитнес-центр, концертный зал и более 90 ресторанов.
О квартире
Общая площадь
44.85 м²
Жилая площадь
42.15 м²
Площадь комнат
42.15 м²
Высота потолков
2.7 м
Этаж
9
Окна выходят
На улицу
О доме
Год постройки
2023
Этажность
8
Материал постройки
Кирпично-монолитный
Материал перекрытий
Монолитные
Отопление
Центральное
Парковка
Наземная
Расположение
Россия, Санкт-Петербург, Измайловский бульвар, 1к2
Балтийская
3 мин.
Фрунзенская
9 мин.
Нарвская
21 мин.
Московские ворота
23 мин.
Пушкинская
25 мин.
Спасская
30 мин.
Ипотечный калькулятор
Заполните 1 анкету — получите предложения от десятков банков на специальных условиях
Программа ипотеки
Стоимость жилья, ₽
Первый взнос, ₽
Срок кредита
от 5.75%
Ставка
от 108 672 ₽
Платеж в месяц
Расчёт носит информационный характер и не является публичной офертой
Похожие объекты








2-комн. квартира, 41,0 м², 3/10 эт.
Обводный Канал
6 мин.








2-комн. квартира, 39 м², 10/11 эт.
Фрунзенская
7 мин.








2-комн. квартира, 40,4 м², 5/11 эт.
Фрунзенская
7 мин.








2-комн. квартира, 41,9 м², 5/11 эт.
Фрунзенская
7 мин.
Консультант по новостройкам
17 273 900 ₽
385 149 ₽/м²



