Продается 2-комн. квартира, 43.82 м²
Россия, Санкт-Петербург, Василеостровский район, муниципальный округ Васильевский
Горный институт
12 мин.
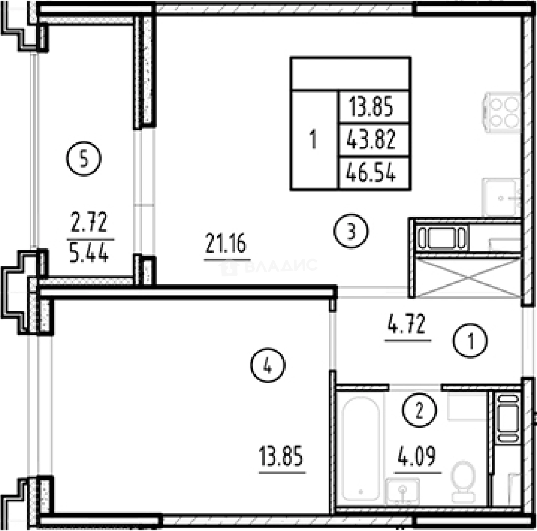
43.82 м²
Общая площадь
13.85 м²
Жилая площадь
21.16 м²
Площадь кухни
11 из 12
Этаж
Описание
Все квартиры передаются без отделки. Планировочные решения включают студии, 1-, 2- и 3-комнатные квартиры площадью от 25 до 110 кв. м. Предусмотрены европланировки с кухнями-гостиными, квартиры с мастер-спальнями, гардеробными и несколькими санузлами. Доступны варианты с террасами и окнами на две стороны. Отопление и водоснабжение организованы по горизонтальной системе, установлены сплит-шахты для кондиционирования.
Внутренняя инфраструктура комплекса включает гранд-лобби с потолками 7,7 м, мягкими зонами и ресепшеном, фитнес-зал, а также закрытый для жителей комьюнити-клуб с коворкингом, бьюти-зоной, детским клубом, кинозалом и библиотекой. Во дворе — авторский ландшафтный дизайн от студии Derevo Park, основанный на концепции лесных комнат. Территория закрыта и охраняется, действует система видеонаблюдения, установлена IP-домофония, работает мобильное приложение для резидентов.
Комплекс расположен в исторической части Васильевского острова Санкт-Петербурга, на пересечении Малого проспекта и 24-й линии. В пешей доступности — школы, университеты, детские сады, поликлиники, фитнес-центры, ТЦ, рестораны, культурные и общественные пространства. До станции метро Горный институт — 15 минут пешком, до Невского проспекта — 10 минут транспортом. Удобный выезд на ЗСД обеспечивает доступность аэропорта и прибрежных районов.
О квартире
Общая площадь
43.82 м²
Жилая площадь
13.85 м²
Площадь кухни
21.16 м²
Площадь комнат
13.85 м²
Высота потолков
3 м
Этаж
11
Окна выходят
На улицу
О доме
Год постройки
2028
Этажность
12
Материал постройки
Монолитный
Материал перекрытий
Монолитные
Отопление
Центральное
Парковка
Подземная
Расположение
Россия, Санкт-Петербург, Василеостровский район, муниципальный округ Васильевский
Горный институт
12 мин.
Василеостровская
16 мин.
Приморская
18 мин.
Спортивная
30 мин.
Чкаловская
4 мин.
Адмиралтейская
5 мин.
Крестовский остров
5 мин.
Садовая
6 мин.
Ипотечный калькулятор
Заполните 1 анкету — получите предложения от десятков банков на специальных условиях
Программа ипотеки
Стоимость жилья, ₽
Первый взнос, ₽
Срок кредита
от 5.75%
Ставка
от 123 849 ₽
Платеж в месяц
Расчёт носит информационный характер и не является публичной офертой
Похожие объекты








2-комн. квартира, 41,7 м², 4/6 эт.
Василеостровская
6 мин.








2-комн. квартира, 41,7 м², 6/6 эт.
Василеостровская
6 мин.








2-комн. квартира, 44,5 м², 2/6 эт.
Василеостровская
6 мин.








2-комн. квартира, 47,8 м², 3/6 эт.
Василеостровская
6 мин.
Консультант по новостройкам
19 686 420 ₽
449 257 ₽/м²







