Продается 3-комн. квартира, 53.98 м²
Россия, Санкт-Петербург, Пушкинский район, посёлок Шушары, ЖК Аэросити 7
Купчино
4 мин.
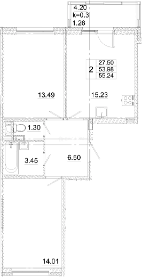
53.98 м²
Общая площадь
27.5 м²
Жилая площадь
15.23 м²
Площадь кухни
4 из 12
Этаж
Описание
Квартиры в домах представлены как классическими, так и европланировками. В них предусмотрены потолки высотой до 2,73 метра. Покупателям предоставляется возможность выбрать квартиры с чистовой отделкой и без.
О квартире
Общая площадь
53.98 м²
Жилая площадь
27.5 м²
Площадь кухни
15.23 м²
Площадь комнат
13.49+14.01 м²
Высота потолков
2.7199999999999998 м
Этаж
4
Окна выходят
На улицу
О доме
Год постройки
2027
Этажность
12
Материал постройки
Кирпично-монолитный
Материал перекрытий
Монолитные
Отопление
Центральное
Парковка
Подземная
Расположение
Россия, Санкт-Петербург, Пушкинский район, посёлок Шушары, ЖК Аэросити 7
Купчино
4 мин.
Звёздная
4 мин.
Шушары
7 мин.
Дунайская
7 мин.
Московская
7 мин.
Проспект Славы
9 мин.
Парк Победы
10 мин.
Ленинский проспект
10 мин.
Ипотечный калькулятор
Заполните 1 анкету — получите предложения от десятков банков на специальных условиях
Программа ипотеки
Стоимость жилья, ₽
Первый взнос, ₽
Срок кредита
от 5.75%
Ставка
от 62 554 ₽
Платеж в месяц
Расчёт носит информационный характер и не является публичной офертой
Похожие объекты











2-комн. квартира, 52,8 м², 8/12 эт.
Звёздная
4 мин.











2-комн. квартира, 59,7 м², 5/12 эт.
Звёздная
4 мин.











2-комн. квартира, 54,0 м², 9/12 эт.
Звёздная
4 мин.










2-комн. квартира, 52,8 м², 6/12 эт.
Звёздная
4 мин.
Консультант по новостройкам
9 943 200 ₽
184 202 ₽/м²






