Продается 1-комн. квартира, 39.98 м²
Россия, Санкт-Петербург, Приморский район, муниципальный округ Ланское, жилой комплекс Министр
Чёрная речка
14 мин.
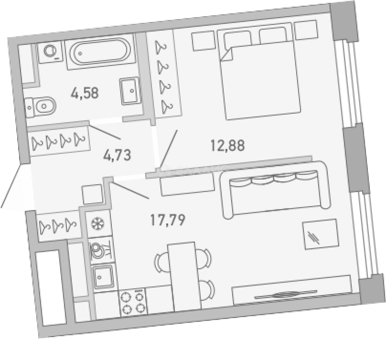
39.98 м²
Общая площадь
12.88 м²
Жилая площадь
17.79 м²
Площадь кухни
7 из 10
Этаж
Описание
В жилом комплексе предложены однокомнатные, двух- и трехкомнатные квартиры. В них предусмотрены просторные коридоры и увеличенные размеры совмещенных кухонь-гостиных, имеются отдельные помещения для гардеробных. Квартиры сдаются без отделки, с высотой потолков до 3,2 метров, увеличенными и панорамными окнами.
Территория жилого комплекса «Министр» закрыта и благоустроена. Спроектированы детские и спортивные площадки, места для отдыха. На 1 этаже расположены коммерческие помещения, на подземном этаже – кладовые. Для владельцев автомобилей предусмотрен подземный паркинг.
Жилой комплекс расположен на Выборгской набережной, у слияния двух петербургских водных артерий – Черной речки и Большой Невки, у Головинского моста. В пешей доступности расположены Головинский и Литовский сады, сад Александа Матросова, Строгановский парк. Рядом расположены школы и детские сады, университеты, поликлиники, кафе и рестораны, магазины и спортивные центры. До метро «Черная речка» можно добраться за 15 минут пешком.
О квартире
Общая площадь
39.98 м²
Жилая площадь
12.88 м²
Площадь кухни
17.79 м²
Площадь комнат
12.88 м²
Высота потолков
2.7 м
Этаж
7
Окна выходят
На улицу
О доме
Год постройки
2026
Этажность
10
Материал постройки
Монолитный
Материал перекрытий
Монолитные
Отопление
Центральное
Парковка
Подземная
Расположение
Россия, Санкт-Петербург, Приморский район, муниципальный округ Ланское, жилой комплекс Министр
Чёрная речка
14 мин.
Лесная
17 мин.
Петроградская
21 мин.
Выборгская
24 мин.
Пионерская
4 мин.
Чкаловская
4 мин.
Горьковская
4 мин.
Площадь Мужества
5 мин.
Ипотечный калькулятор
Заполните 1 анкету — получите предложения от десятков банков на специальных условиях
Программа ипотеки
Стоимость жилья, ₽
Первый взнос, ₽
Срок кредита
от 5.75%
Ставка
от 148 241 ₽
Платеж в месяц
Расчёт носит информационный характер и не является публичной офертой
Похожие объекты








1-комн. квартира, 36,2 м², 3/6 эт.
Петроградская
12 мин.









2-комн. квартира, 39,8 м², 2/6 эт.
Петроградская
12 мин.








2-комн. квартира, 42,0 м², 2/6 эт.
Петроградская
12 мин.









2-комн. квартира, 35,6 м², 6/6 эт.
Петроградская
12 мин.
Консультант по новостройкам
23 563 737 ₽
589 389 ₽/м²






