Продается 2-комн. квартира, 76.82 м²
Россия, Санкт-Петербург, Приморский район, муниципальный округ Ланское, жилой комплекс Министр
Чёрная речка
14 мин.
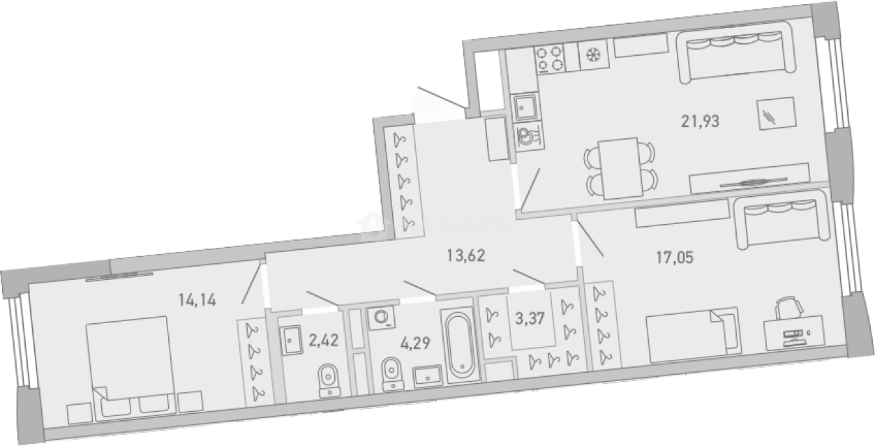
76.82 м²
Общая площадь
31.19 м²
Жилая площадь
21.93 м²
Площадь кухни
3 из 10
Этаж
Описание
В жилом комплексе предложены однокомнатные, двух- и трехкомнатные квартиры. В них предусмотрены просторные коридоры и увеличенные размеры совмещенных кухонь-гостиных, имеются отдельные помещения для гардеробных. Квартиры сдаются без отделки, с высотой потолков до 3,2 метров, увеличенными и панорамными окнами.
Территория жилого комплекса «Министр» закрыта и благоустроена. Спроектированы детские и спортивные площадки, места для отдыха. На 1 этаже расположены коммерческие помещения, на подземном этаже – кладовые. Для владельцев автомобилей предусмотрен подземный паркинг.
Жилой комплекс расположен на Выборгской набережной, у слияния двух петербургских водных артерий – Черной речки и Большой Невки, у Головинского моста. В пешей доступности расположены Головинский и Литовский сады, сад Александа Матросова, Строгановский парк. Рядом расположены школы и детские сады, университеты, поликлиники, кафе и рестораны, магазины и спортивные центры. До метро «Черная речка» можно добраться за 15 минут пешком.
О квартире
Общая площадь
76.82 м²
Жилая площадь
31.19 м²
Площадь кухни
21.93 м²
Площадь комнат
14.14+17.05 м²
Высота потолков
2.7 м
Этаж
3
Окна выходят
На улицу
О доме
Год постройки
2026
Этажность
10
Материал постройки
Монолитный
Материал перекрытий
Монолитные
Отопление
Центральное
Парковка
Подземная
Расположение
Россия, Санкт-Петербург, Приморский район, муниципальный округ Ланское, жилой комплекс Министр
Чёрная речка
14 мин.
Лесная
17 мин.
Петроградская
21 мин.
Выборгская
24 мин.
Пионерская
4 мин.
Чкаловская
4 мин.
Горьковская
4 мин.
Площадь Мужества
5 мин.
Ипотечный калькулятор
Заполните 1 анкету — получите предложения от десятков банков на специальных условиях
Программа ипотеки
Стоимость жилья, ₽
Первый взнос, ₽
Срок кредита
от 5.75%
Ставка
от 194 754 ₽
Платеж в месяц
Расчёт носит информационный характер и не является публичной офертой
Похожие объекты









3-комн. квартира, 69,0 м², 5/6 эт.
Петроградская
12 мин.









3-комн. квартира, 68,7 м², 2/6 эт.
Петроградская
12 мин.






3-комн. квартира, 79,5 м², 5/6 эт.
Пионерская
20 мин.






3-комн. квартира, 83,8 м², 6/6 эт.
Пионерская
20 мин.
Консультант по новостройкам
30 957 161 ₽
402 984 ₽/м²












