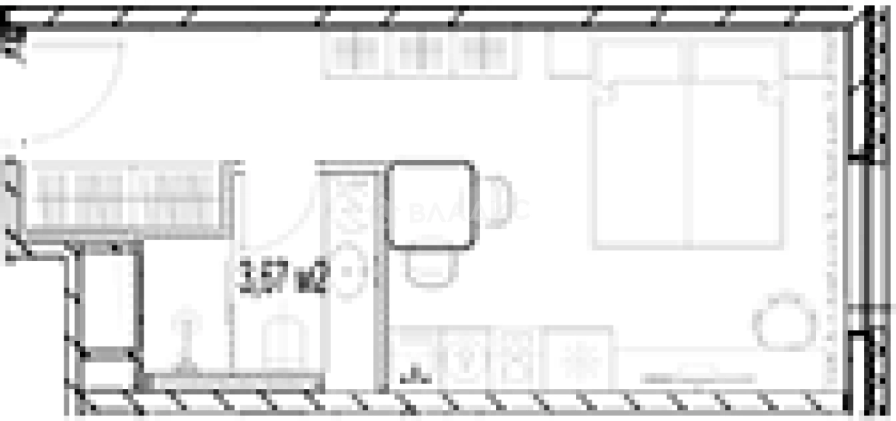
Продается Студия, 23.98 м²
Россия, Санкт-Петербург, Приморский район, муниципальный округ Комендантский Аэродром
Пионерская
6 мин.
23.98 м²
Общая площадь
20.31 м²
Жилая площадь
10 из 23
Этаж
Описание
В проекте представлено 5 типов и 15 вариаций планировок от студий до 2 комнатных юнитов евроформата. Сдаются они с чистовой отделкой в 2 стилях, высотой потолков 2.9 метров и увеличенными окнами.
Территория комплекса благоустроена: выполнено ландшафтное озеленение, спроектирован пешеходный фонтан, сад тишины, современная детская площадка и теневые зонты. Для жителей предусмотрен собственный спорт-клуб, бьюти-пространство, кинотеатр, общественная гостиная групповых мероприятий и детская комната, а для работы имеются зоны коворкинга и переговорные. Под авторством Italy&co создано гастро-пространство, которое включает в себя 2-уровневый ресторан с террасой, кафе для завтраков и лаунж-бар. Безопасность обеспечивается круглосуточной службой безопасности и системой контроля доступа. Для владельцев автомобилей предусмотрен подземный паркинг.
Проект расположен в Приморском районе, в пешей доступности от Удельного парка, ТРЦ «Сити-Молл» и метро «Пионерская». В 15 минутах езды расположен въезд на ЗСД, до центра города можно добраться за 20 минут на автомобиле.
О квартире
Общая площадь
23.98 м²
Жилая площадь
20.31 м²
Площадь комнат
20.31 м²
Высота потолков
2.9 м
Этаж
10
Окна выходят
На улицу
О доме
Год постройки
2028
Этажность
23
Материал постройки
Монолитный
Парковка
Подземная
Расположение
Россия, Санкт-Петербург, Приморский район, муниципальный округ Комендантский Аэродром
Пионерская
6 мин.
Удельная
18 мин.
Комендантский проспект
27 мин.
Чёрная речка
30 мин.
Старая Деревня
4 мин.
Лесная
5 мин.
Озерки
5 мин.
Площадь Мужества
6 мин.
Ипотечный калькулятор
Заполните 1 анкету — получите предложения от десятков банков на специальных условиях
Программа ипотеки
Стоимость жилья, ₽
Первый взнос, ₽
Срок кредита
от 5.75%
Ставка
от 56 735 ₽
Платеж в месяц
Расчёт носит информационный характер и не является публичной офертой
Похожие объекты











Студия, 23,3 м², 7/9 эт.
Пионерская
12 мин.











Студия, 24,7 м², 6/9 эт.
Пионерская
12 мин.











Студия, 23,3 м², 6/9 эт.
Пионерская
12 мин.











Студия, 23,3 м², 8/9 эт.
Пионерская
12 мин.
Консультант по новостройкам
9 018 318 ₽
376 077 ₽/м²





