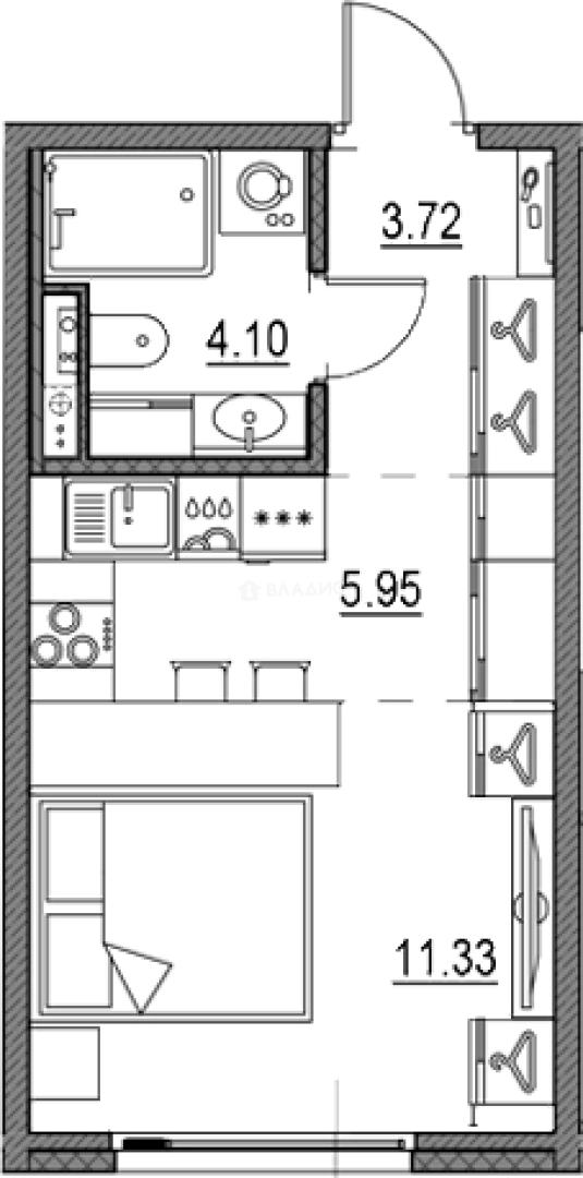
Продается Студия, 25.1 м²
Россия, Санкт-Петербург, ЖК Новая Земля
Приморская
4 мин.
25.1 м²
Общая площадь
17.28 м²
Жилая площадь
17 из 23
Этаж
Описание
В проекте представлены квартиры различных планировок. Жилье передается в технологически подготовленном состоянии (комплектация TechnoBox), с увеличенными окнами и высотой потолков от 2,7 до 3 метров. Пространства адаптированы для интеграции технологических решений, включая систему «умный дом» и вентиляцию с функцией очищения воздуха.
Комплекс включает благоустроенные зеленые зоны и пешеходные зоны для прогулок. На территории предусмотрены коммерческие помещения для ритейла, паркинг, а также эстетично оформленные входные группы. Прямо напротив комплекса расположены детский сад и школа.
Проект находится в западной части Васильевского острова. Район активно развивается, сочетая близость к Финскому заливу, историческому центру города и новым современным жилым проектам. До метро «Приморская» можно доехать за 10 минут, а выезд на ЗСД расположен всего в 1 км. Рядом находятся парки, культурные и спортивные объекты, что делает локацию привлекательной для жизни
О квартире
Общая площадь
25.1 м²
Жилая площадь
17.28 м²
Площадь комнат
17.28 м²
Высота потолков
2.7 м
Этаж
17
Окна выходят
На улицу
О доме
Год постройки
2028
Этажность
23
Материал постройки
Монолитный
Парковка
Наземная
Расположение
Россия, Санкт-Петербург, ЖК Новая Земля
Приморская
4 мин.
Горный институт
6 мин.
Зенит
6 мин.
Василеостровская
7 мин.
Крестовский остров
8 мин.
Беговая
9 мин.
Спортивная
9 мин.
Нарвская
9 мин.
Ипотечный калькулятор
Заполните 1 анкету — получите предложения от десятков банков на специальных условиях
Программа ипотеки
Стоимость жилья, ₽
Первый взнос, ₽
Срок кредита
от 5.75%
Ставка
от 63 967 ₽
Платеж в месяц
Расчёт носит информационный характер и не является публичной офертой
Консультант по новостройкам
10 167 782 ₽
405 091 ₽/м²

























