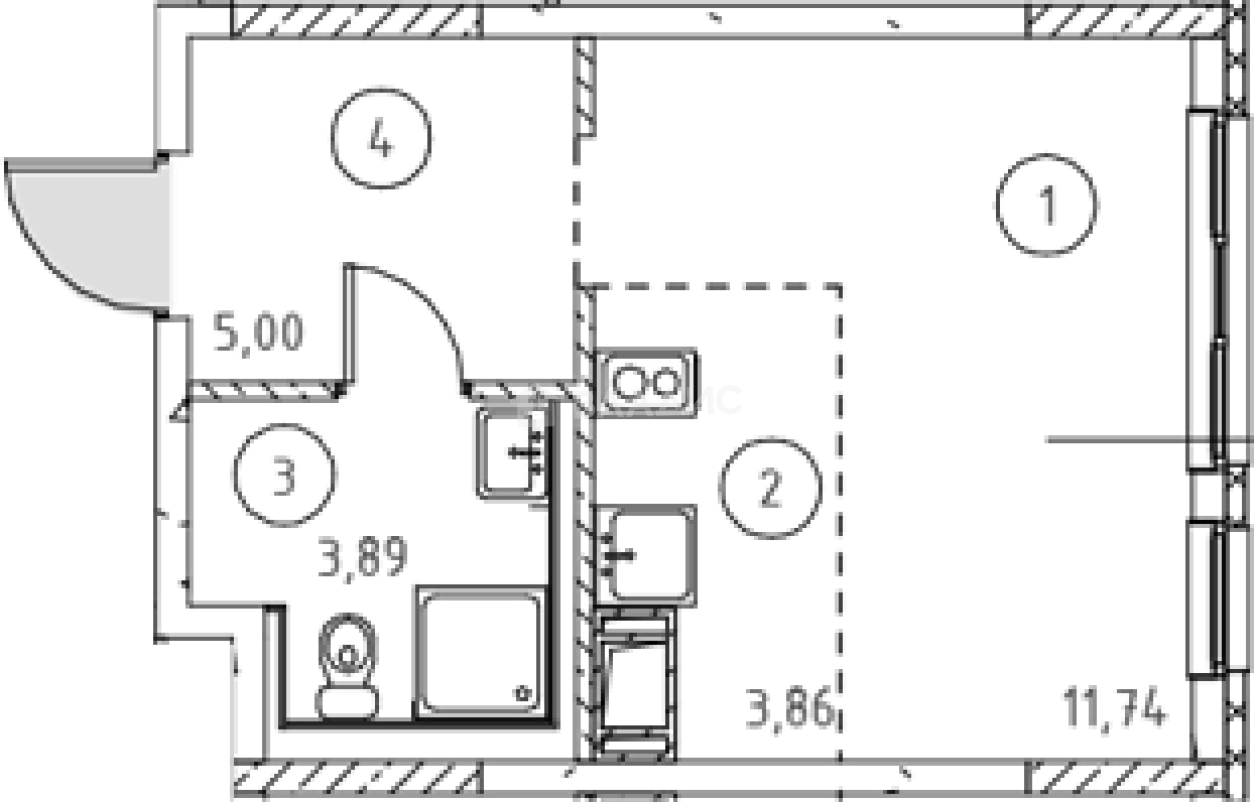
Продается Студия, 24.49 м²
Россия, Санкт-Петербург, Колпино, ЖК Новое Колпино, 33
Рыбацкое
13 мин.
24.49 м²
Общая площадь
15.6 м²
Жилая площадь
9 из 11
Этаж
Описание
Квартиры проекта представлены всеми видами планировок от студий до четырех и более комнат. Они передаются с чистовой отделкой.
На первых этажах ЖК расположены коммерческие помещения, также объект включает в себя школу, два детских сада и кабинет врача общей практики. Территория благоустроена зелеными зонами, местами для прогулок и пешеходными тротуарами. Во дворе свободном от автомобилей расположены детские и спортивные площадки, а также открытые парковочные места для автомобилей.
Жилой комплекс расположен в Колпинском районе. В 5 минутах пешком находится набережная реки Ижоры. В районе дома есть продуктовые магазины, прачечные, химчистки, парикмахерские, салоны красоты, медицинские центры, стоматология, отделения банков, офисные помещения, кафе и рестораны. Метро и ж/д станция «Рыбацкое» расположены в 20 минутах транспортом, город Колпино в 10 минутах транспортом.
О квартире
Общая площадь
24.49 м²
Жилая площадь
15.6 м²
Площадь комнат
15.6 м²
Высота потолков
2.6 м
Этаж
9
Окна выходят
На улицу
О доме
Год постройки
2026
Этажность
11
Материал постройки
Кирпично-монолитный
Материал перекрытий
Монолитные
Отопление
Центральное
Парковка
Наземная
Расположение
Россия, Санкт-Петербург, Колпино, ЖК Новое Колпино, 33
Рыбацкое
13 мин.
Шушары
16 мин.
Обухово
17 мин.
Пролетарская
19 мин.
Дунайская
20 мин.
Купчино
22 мин.
Ломоносовская
22 мин.
Проспект Славы
23 мин.
Ипотечный калькулятор
Заполните 1 анкету — получите предложения от десятков банков на специальных условиях
Программа ипотеки
Стоимость жилья, ₽
Первый взнос, ₽
Срок кредита
от 5.75%
Ставка
от 26 841 ₽
Платеж в месяц
Расчёт носит информационный характер и не является публичной офертой
Похожие объекты





Студия, 26,2 м², 7/11 эт.
Рыбацкое
12 мин.





Студия, 21,8 м², 5/11 эт.
Рыбацкое
12 мин.





Студия, 26,2 м², 4/11 эт.
Рыбацкое
12 мин.





Студия, 26,2 м², 8/11 эт.
Рыбацкое
12 мин.
Консультант по новостройкам
4 266 385 ₽
174 210 ₽/м²







