Продается 1-комн. квартира, 32.28 м²
Россия, Санкт-Петербург, Пушкинский район, посёлок Шушары, жилой комплекс Ап-квартал Новый Московский
Шушары
13 мин.
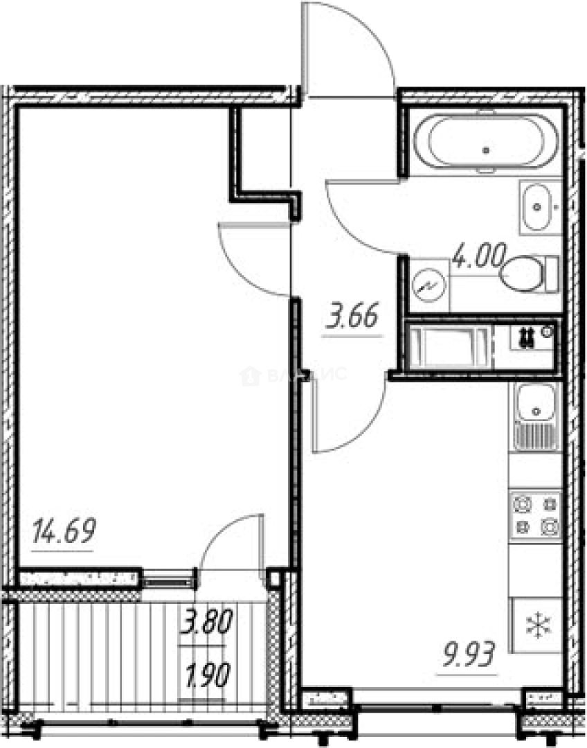
32.28 м²
Общая площадь
14.69 м²
Жилая площадь
9.93 м²
Площадь кухни
7 из 6
Этаж
Описание
В проекте предложено множество планировочных решений: в наличии квартиры, как классического типа, так и европланировки. Сдаются они без отделки и с чистовой отделкой. Высота потолков от 2,7 метров, а на первых этажах до 3,3 метров. В каждой квартире предусмотрено увеличенное количество окон.
В жилом комплексе реализована закрытая охраняемая территория с контролем доступа и системой видеонаблюдения, с возможностью вывода всех камер на смартфон жителя. Единая концепция благоустройства выполнена с современными элементами и материалами. В проекте предусмотрена собственная инфраструктура: детский сад, школа, кабинеты врачей, пункт полиции, физкультурно-оздоровительный центр, отдельностоящий паркинг на 6 уровней с лифтами и пешеходный променад с коммерческими помещениями.
ЖК расположен в Пушкинском районе. Рядом есть все необходимое: учебные заведения, медицинские учреждения, крупнейшие в районе ТРК, фитнес клубы, кафе. КАД в 20 минут транспортом. Аэропорт и Невский лесопарк в 30 минутах транспортом. До метро «Шушары» можно добраться за 15 минут на автомобиле.
О квартире
Общая площадь
32.28 м²
Жилая площадь
14.69 м²
Площадь кухни
9.93 м²
Площадь комнат
14.69 м²
Высота потолков
2.7 м
Этаж
7
Окна выходят
На улицу
О доме
Год постройки
2025
Этажность
6
Материал постройки
Кирпично-монолитный
Отопление
Центральное
Парковка
Наземная
Расположение
Россия, Санкт-Петербург, Пушкинский район, посёлок Шушары, жилой комплекс Ап-квартал Новый Московский
Шушары
13 мин.
Рыбацкое
13 мин.
Дунайская
17 мин.
Купчино
17 мин.
Обухово
17 мин.
Звёздная
19 мин.
Пролетарская
20 мин.
Проспект Славы
20 мин.
Ипотечный калькулятор
Заполните 1 анкету — получите предложения от десятков банков на специальных условиях
Программа ипотеки
Стоимость жилья, ₽
Первый взнос, ₽
Срок кредита
от 5.75%
Ставка
от 37 262 ₽
Платеж в месяц
Расчёт носит информационный характер и не является публичной офертой
Похожие объекты






1-комн. квартира, 31,5 м², 9/6 эт.
Шушары
13 мин.






1-комн. квартира, 31,3 м², 8/6 эт.
Шушары
13 мин.






1-комн. квартира, 31,8 м², 7/6 эт.
Шушары
13 мин.






1-комн. квартира, 31,8 м², 10/6 эт.
Шушары
13 мин.
Консультант по новостройкам
5 922 881 ₽
183 485 ₽/м²












