Продается Студия, 22.48 м²
Россия, Санкт-Петербург, Пушкинский район, посёлок Шушары, Московское шоссе, 325к1
Шушары
13 мин.
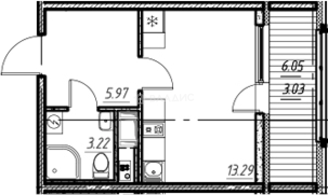
22.48 м²
Общая площадь
13.29 м²
Жилая площадь
10 из 6
Этаж
Описание
В проекте предложено множество планировочных решений: в наличии квартиры, как классического типа, так и европланировки. Сдаются они без отделки и с чистовой отделкой. Высота потолков от 2,7 метров, а на первых этажах до 3,3 метров. В каждой квартире предусмотрено увеличенное количество окон.
В жилом комплексе реализована закрытая охраняемая территория с контролем доступа и системой видеонаблюдения, с возможностью вывода всех камер на смартфон жителя. Единая концепция благоустройства выполнена с современными элементами и материалами. В проекте предусмотрена собственная инфраструктура: детский сад, школа, кабинеты врачей, пункт полиции, физкультурно-оздоровительный центр, отдельностоящий паркинг на 6 уровней с лифтами и пешеходный променад с коммерческими помещениями.
ЖК расположен в Пушкинском районе. Рядом есть все необходимое: учебные заведения, медицинские учреждения, крупнейшие в районе ТРК, фитнес клубы, кафе. КАД в 20 минут транспортом. Аэропорт и Невский лесопарк в 30 минутах транспортом. До метро «Шушары» можно добраться за 15 минут на автомобиле.
О квартире
Общая площадь
22.48 м²
Жилая площадь
13.29 м²
Площадь комнат
13.29 м²
Высота потолков
2.7 м
Этаж
10
Окна выходят
На улицу
О доме
Год постройки
2025
Этажность
6
Материал постройки
Кирпично-монолитный
Материал перекрытий
Монолитные
Отопление
Центральное
Парковка
Наземная
Расположение
Россия, Санкт-Петербург, Пушкинский район, посёлок Шушары, Московское шоссе, 325к1
Шушары
13 мин.
Рыбацкое
14 мин.
Дунайская
17 мин.
Купчино
17 мин.
Обухово
17 мин.
Звёздная
19 мин.
Пролетарская
20 мин.
Проспект Славы
20 мин.
Ипотечный калькулятор
Заполните 1 анкету — получите предложения от десятков банков на специальных условиях
Программа ипотеки
Стоимость жилья, ₽
Первый взнос, ₽
Срок кредита
от 5.75%
Ставка
от 24 541 ₽
Платеж в месяц
Расчёт носит информационный характер и не является публичной офертой
Похожие объекты







Студия, 25,2 м², 4/11 эт.
Шушары
11 мин.







Студия, 25,2 м², 5/11 эт.
Шушары
11 мин.






Студия, 25,7 м², 1/6 эт.
Шушары
13 мин.






Студия, 23,6 м², 6/6 эт.
Шушары
13 мин.
Консультант по новостройкам
3 900 862 ₽
173 526 ₽/м²






