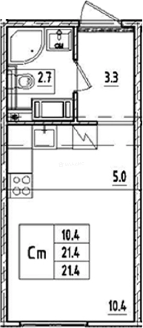
Продается Студия, 21.4 м²
Россия, Санкт-Петербург, жилой комплекс Октябрьская Набережная
Пролетарская
13 мин.
21.4 м²
Общая площадь
15.4 м²
Жилая площадь
20 из 25
Этаж
Описание
В комплексе предложено множество планировочных решений: в наличии квартиры, как классического типа, так и европланировки. Среди них представлены квартиры с панорамным видом на Неву. Они сдаются с чистовой отделкой, высота потолков составляет 2,55 метра. В каждой квартире выполнена горизонтальная разводка труб отопления и водоснабжения.
Придомовая территория благоустроена по принципу «безбарьерное пространство» и включает в себя: игровые комплексы, спортивные площадки и турники, зоны для йоги, лаунжи и воркауты, магазины и сервисы. По всей территории выполнено ландшафтное озеленение. На первых этажах находятся коммерческие помещения. У комплекса есть свой детский сад и школа. Для автовладельцев предусмотрены паркинги и станции зарядки автомобилей. Владельцы собак могут воспользоваться площадкой для выгула собак.
Жилой комплекс расположен на правом берегу Невы, на пересечении Октябрьской набережной и проспекта Большевиков. Рядом развязка КАД и остановки общественного транспорта. До станции метро «Ломоносовская» — 10 минут транспортом. Сад «Дача Чернова» — 20 минут пешком.
О квартире
Общая площадь
21.4 м²
Жилая площадь
15.4 м²
Площадь комнат
15.4 м²
Высота потолков
2.55 м
Этаж
20
Окна выходят
На улицу
О доме
Год постройки
2027
Этажность
25
Материал постройки
Панельный
Материал перекрытий
Монолитные
Отопление
Центральное
Парковка
Многоуровневая
Расположение
Россия, Санкт-Петербург, жилой комплекс Октябрьская Набережная
Пролетарская
13 мин.
Ломоносовская
4 мин.
Обухово
4 мин.
Улица Дыбенко
6 мин.
Рыбацкое
7 мин.
Елизаровская
7 мин.
Проспект Славы
8 мин.
Дунайская
8 мин.
Ипотечный калькулятор
Заполните 1 анкету — получите предложения от десятков банков на специальных условиях
Программа ипотеки
Стоимость жилья, ₽
Первый взнос, ₽
Срок кредита
от 5.75%
Ставка
от 36 916 ₽
Платеж в месяц
Расчёт носит информационный характер и не является публичной офертой
Похожие объекты





Студия, 22,9 м², 11/13 эт.
Обухово
3 мин.




Студия, 18,7 м², 4/13 эт.
Обухово
3 мин.





Студия, 20,5 м², 4/13 эт.
Обухово
3 мин.




Студия, 23,1 м², 11/13 эт.
Обухово
3 мин.
Консультант по новостройкам
5 867 858 ₽
274 199 ₽/м²







