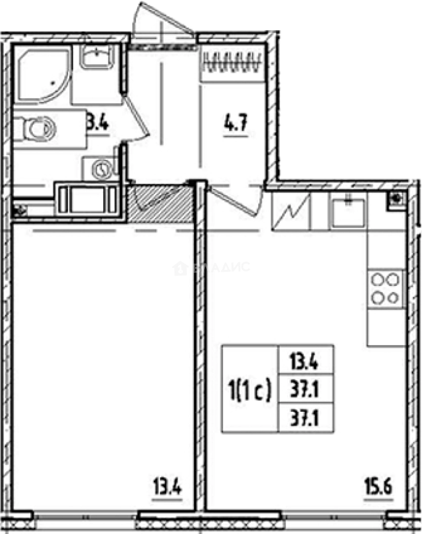
Продается 2-комн. квартира, 37.1 м²
Россия, Санкт-Петербург, жилой комплекс Октябрьская Набережная
Пролетарская
12 мин.
37.1 м²
Общая площадь
13.4 м²
Жилая площадь
15.6 м²
Площадь кухни
14 из 25
Этаж
Описание
В комплексе предложено множество планировочных решений: в наличии квартиры, как классического типа, так и европланировки. Среди них представлены квартиры с панорамным видом на Неву. Они сдаются с чистовой отделкой, высота потолков составляет 2,55 метра. В каждой квартире выполнена горизонтальная разводка труб отопления и водоснабжения.
Придомовая территория благоустроена по принципу «безбарьерное пространство» и включает в себя: игровые комплексы, спортивные площадки и турники, зоны для йоги, лаунжи и воркауты, магазины и сервисы. По всей территории выполнено ландшафтное озеленение. На первых этажах находятся коммерческие помещения. У комплекса есть свой детский сад и школа. Для автовладельцев предусмотрены паркинги и станции зарядки автомобилей. Владельцы собак могут воспользоваться площадкой для выгула собак.
Жилой комплекс расположен на правом берегу Невы, на пересечении Октябрьской набережной и проспекта Большевиков. Рядом развязка КАД и остановки общественного транспорта. До станции метро «Ломоносовская» — 10 минут транспортом. Сад «Дача Чернова» — 20 минут пешком.
О квартире
Общая площадь
37.1 м²
Жилая площадь
13.4 м²
Площадь кухни
15.6 м²
Площадь комнат
13.4 м²
Высота потолков
2.55 м
Этаж
14
Окна выходят
На улицу
О доме
Год постройки
2027
Этажность
25
Материал постройки
Панельный
Материал перекрытий
Монолитные
Отопление
Центральное
Парковка
Многоуровневая
Расположение
Россия, Санкт-Петербург, жилой комплекс Октябрьская Набережная
Пролетарская
12 мин.
Ломоносовская
4 мин.
Обухово
4 мин.
Улица Дыбенко
6 мин.
Рыбацкое
7 мин.
Елизаровская
7 мин.
Проспект Славы
8 мин.
Дунайская
8 мин.
Ипотечный калькулятор
Заполните 1 анкету — получите предложения от десятков банков на специальных условиях
Программа ипотеки
Стоимость жилья, ₽
Первый взнос, ₽
Срок кредита
от 5.75%
Ставка
от 61 303 ₽
Платеж в месяц
Расчёт носит информационный характер и не является публичной офертой
Похожие объекты







2-комн. квартира, 35,3 м², 5/18 эт.
Улица Дыбенко
22 мин.




2-комн. квартира, 35,3 м², 5/18 эт.
Улица Дыбенко
22 мин.






2-комн. квартира, 35,3 м², 13/18 эт.
Улица Дыбенко
22 мин.






2-комн. квартира, 35,3 м², 4/18 эт.
Улица Дыбенко
22 мин.
Консультант по новостройкам
9 744 315 ₽
262 650 ₽/м²









